Versatile multi-generational home near Chichester with large private garden.
5 double bedrooms with 4 bathrooms and three reception rooms
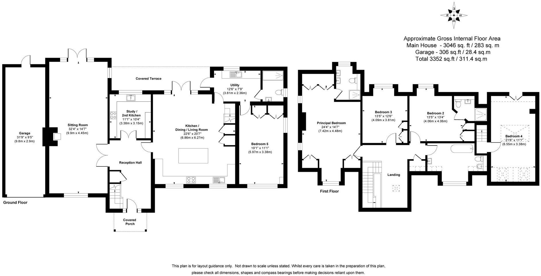
Large 3,046 sq.ft living space built to individual design (2009)
Ground-floor bedroom plus luxury shower room — ideal multi-gen layout
Secondary kitchen/study creates self-contained living potential
Wet underfloor heating most ground floor; radiators to first floor
Attached 31' tandem garage with electronic roller door (limited width)
Two driveways — parking for up to six vehicles
Council Tax Band G — relatively high running costs
This substantial five-double-bedroom detached house (3,046 sq.ft) offers flexible family living across well-proportioned rooms, built to an individual design in 2009 and recently refurbished. The layout suits multi-generational households with a generous ground-floor bedroom and adjacent luxury shower room, plus a secondary kitchen formerly a study — ideal for live-in relatives or adult children.
The heart of the home is the large kitchen/dining room with island, Rangemaster cooker and patio doors to a covered terrace, while a triple-aspect sitting room with woodburning stove opens to the private, landscaped garden. Practical benefits include wet underfloor heating to most of the ground floor, radiators upstairs, a large tandem 31’ garage (electronic roller door) and two driveways providing parking for up to six vehicles.
Outside, the non-overlooked easterly garden is well landscaped with fruit and specimen trees, two patios and a covered terrace for alfresco entertaining. The property sits on a sought-after country lane on the town fringe, bordered by farmland yet within a 10–15 minute drive of Chichester and Arundel and close to Barnham station.
Notable drawbacks are factual: council tax sits at band G, which is relatively expensive, and the attached garage’s tandem layout limits parking for wider vehicles. Services include mains gas central heating and double glazing (install dates not specified). Mobile signal and local crime are average — the location is peaceful but semi-rural.
4 bedroom detached house for sale in Squires Grove, Eastergate, Chichester, West Sussex, PO20 — £535,000 • 4 bed • 2 bath • 1542 ft²
3 bedroom detached house for sale in Grender Way, Aldingbourne, PO20 — £375,000 • 3 bed • 2 bath • 996 ft²
4 bedroom detached house for sale in Gossamer Lane, Aldwick, PO21 — £1,000,000 • 4 bed • 2 bath • 2788 ft²
5 bedroom detached house for sale in Pagham Road, Chichester, PO20 — £1,650,000 • 5 bed • 3 bath • 3129 ft²
5 bedroom detached house for sale in New Town Road, Storrington, RH20 — £1,000,000 • 5 bed • 3 bath • 2368 ft²
8 bedroom detached house for sale in Blackmill Lane, Norton, PO18 — £995,000 • 8 bed • 8 bath • 4200 ft²










































































































































