SE23 2PW - 2 bed stylish two bedroom garden flat in Waldram Park Road,…

View on Property Piper

2 bedroom flat for sale in Waldram Park Road, Forest Hill, London, SE23

Summary - 27a Waldram Park Road,LONDON,SE23 2PW SE23 2PW

2 bed 1 bath Flat

Ground-floor two-bedroom flat with private decked garden and easy Forest Hill commute..
- Two bedrooms with private rear decked garden
- Own front door; ground-floor flat
- Share of freehold; council tax band B
- EPC rating C (average energy efficiency)
- One bedroom noticeably smaller than the other
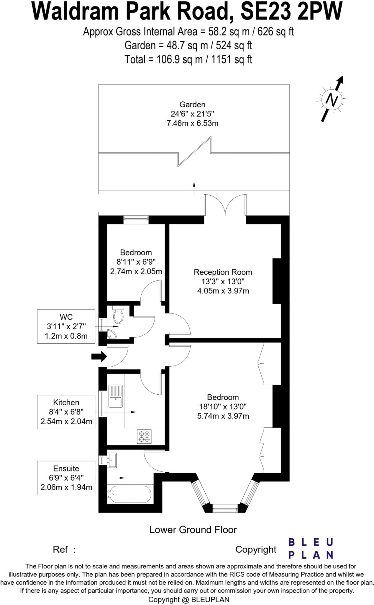
- Approximately 626 sq ft; five rooms in total
- Fast broadband and excellent mobile signal
- Area shows higher deprivation and average crime levels
This ground-floor two-bedroom flat in SE23 offers practical city living with a private rear garden and its own front door. The well-presented interior includes a contemporary living room with solid wood flooring, a good-sized kitchen and a decking area that provides a low-maintenance outdoor retreat.

The layout suits first-time buyers or a small family: two bedrooms (one noticeably smaller), an en-suite bathroom, and a separate WC give flexible living arrangements across approximately 626 sq ft. Fast broadband and excellent mobile signal make the flat convenient for remote working and everyday life.

Practical positives include a share of freehold, council tax band B, and an EPC rating of C. The flat sits close to Forest Hill’s shops, cafés, green spaces and transport links, making commuting and local life straightforward. Be aware the area shows higher deprivation statistics and average local crime; the property itself does not have flood risk.

This is a tidy, ready-to-live-in home with scope for cosmetic updates if desired. It will appeal to first-time buyers seeking a low-maintenance garden, good connections and a compact, comfortable city base.

Property Details

Image Descriptions

Floorplan Description

Rooms

Textual Property Features

Target Audience

AI Tags

Detected Visual Features

Nearby Schools

Nearest Bars And Restaurants

,,,,}

Nearest General Shops

,,}

Nearest Grocery shops

,,}

Nearest Supermarkets

,,}

Nearest Religious buildings

,,}

Nearest Medical buildings

,,,}

Nearest Airports

,,}

Nearest Leisure Facilities

,,,,}

Nearest Tourist attractions

,,}

Nearest Train stations

,,,,}

Nearest Bus stations and stops

,,,,}

Nearest Hotels

,,}

Tags

Local Market Stats

AirBnB Data

Similar Properties

Meta

High Res Images

Compatible Images

Low res Images

Thumbnails

Raw Images

High Res Floorplan Images

Compatible Floorplan Images

Low res Floorplan Images

FloorplanImages Thumbnail

Raw Floorplan Images