Detached farmhouse with barns and planning permission on nearly 6 acres.
About 5.79 acres of pasture and woodland
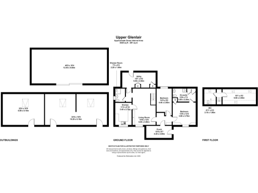
Upper Glenlair is a substantial detached farmhouse set within about 5.79 acres of pasture and amenity woodland, quietly positioned in attractive Dumfries & Galloway countryside. The property offers substantial outbuildings and a large courtyard providing immediate usable space for storage, smallholding or equestrian uses. Planning permission is already approved for a rear extension (reference 25/1124/FUL), giving a clear route to increase living space.  The house provides deceptively spacious accommodation including a living room with wood-burning stove, kitchen, sun room and three bedrooms (one en suite), plus attic/first-floor space with a WC. Heating is by oil central heating and a private well supply and septic tank serve the property.  The house requires renovation and modernisation throughout; some cosmetic work and system upgrades are likely required. Buyers should note the property is served by private water and drainage, council tax is above average, and the wider area is classified as very deprived which may affect resale or mortgage options. This is an ideal plot for someone seeking a private smallholding or rural lifestyle, or an investor prepared to carry out refurbishment and possibly develop the barns (subject to permissions).
 5 bedroom detached house for sale in Hill Of Balmaclellan, Balmaclellan, Castle Douglas, Dumfries and Galloway, DG7 — £520,000 • 5 bed • 1 bath
 5 bedroom farm house for sale in Larglanglee House, Crocketford, DG2 — £725,000 • 5 bed • 2 bath • 2926 ft²
 3 bedroom detached house for sale in 15 Templand, Crossmichael, DG7 — £310,000 • 3 bed • 2 bath • 1439 ft²
 4 bedroom semi-detached house for sale in Steading Cottage, Castle Douglas, DG7 3LB, DG7 — £270,000 • 4 bed • 2 bath • 1384 ft²
 3 bedroom detached house for sale in Fairn Bank, Moniaive, Thornhill, Dumfries and Galloway, DG3 — £275,000 • 3 bed • 2 bath • 835 ft²
 2 bedroom semi-detached house for sale in No' 2 Midpark of Greenlaw, Castle Douglas, DG7 2LH, DG7 — £345,000 • 2 bed • 1 bath • 702 ft²






























































































