Ideal three-bedroom starter with good transport and low running costs.
- Three bedrooms and two bathrooms, practical family/tenant layout
- Freehold property with mains gas boiler and radiators
- Double glazing installed post-2002, improved thermal performance
- Small corner plot with limited garden and external storage only
- Close to Manchester Metropolitan University and retail park
- Frequent bus routes and good motorway links for commuters
- Area flagged as deprived; consider long-term growth implications
- Requires cosmetic updating and exterior tidying/landscaping
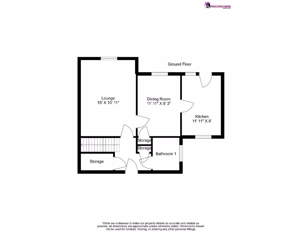
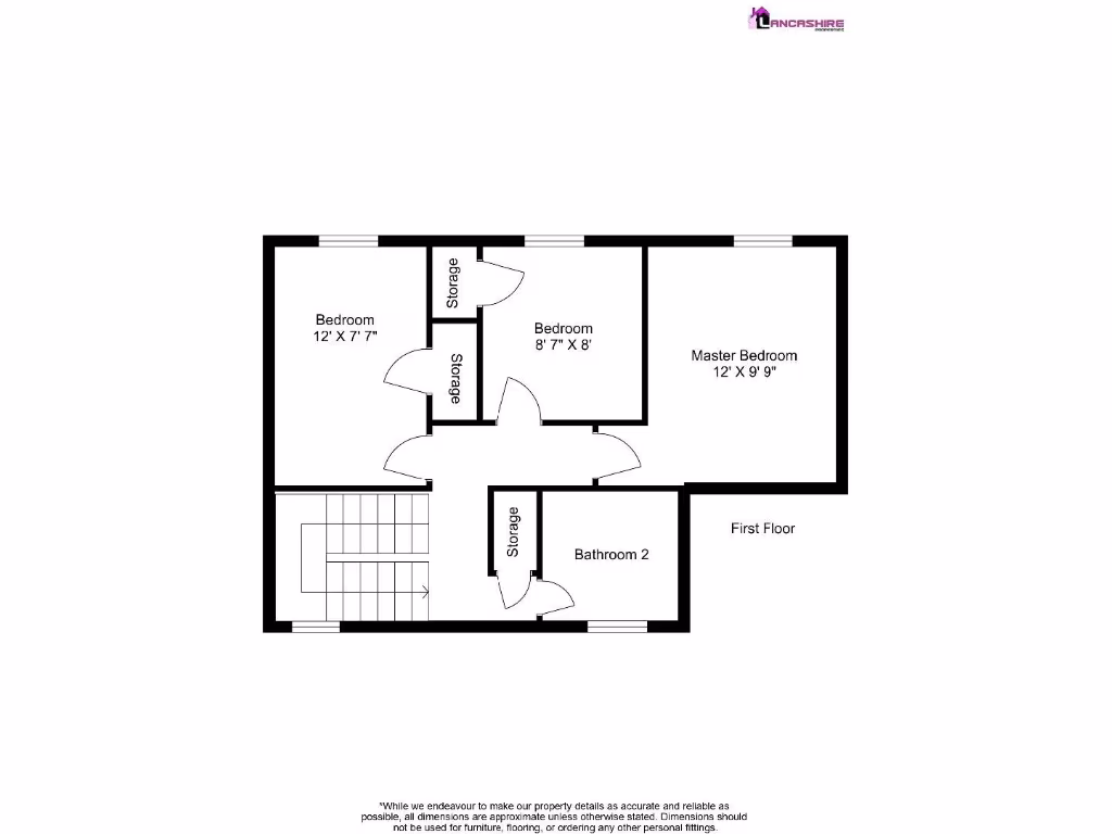
This three-bedroom end-terrace on Carey Walk offers a practical starter home close to Manchester Metropolitan University and local retail amenities. The layout includes a large reception room, separate dining room, kitchen, and two bathrooms, providing useful space for family living or sharers. Recent double glazing and mains gas central heating are already in place, and council tax is in Band A, keeping running costs low.
The property sits on a small corner plot with a modest paved front yard and a side storage area. Externally the brick façade and flat roof are serviceable but would benefit from minor tidying, landscaping and cosmetic updating to improve kerb appeal. Internally the accommodation appears sound but offers clear potential for refurbishment to modernise finishes and fixtures.
Location is a key strength: frequent buses on Princess Road, quick access to the motorway network and nearby retail park make commuting and shopping straightforward. The local neighbourhood is lively and mixed, with student populations and a range of amenities; this brings rental demand but also reflects higher local density and some deprivation indicators.
Important negatives to note: the plot is small with limited garden space, and the area scores as deprived which may influence long-term capital growth. The house is advertised as in a serviceable condition but will require cosmetic and possibly further inspection work — buyers should arrange a full survey to check services and structure.
2 bedroom terraced house for sale in Old York Street, Hulme, Manchester. M15 5TH, M15 — £230,000 • 2 bed • 1 bath • 578 ft²
2 bedroom terraced house for sale in Dorset Avenue, Fallowfield, M14 — £225,000 • 2 bed • 1 bath • 653 ft²
3 bedroom end of terrace house for sale in Rosebery Street, Manchester, Greater Manchester, M14 — £230,000 • 3 bed • 2 bath • 1044 ft²
3 bedroom terraced house for sale in Cecil Grove, Manchester, M18 — £215,000 • 3 bed • 1 bath • 467 ft²
3 bedroom semi-detached house for sale in Maine Road, Moss Side, M14 — £309,950 • 3 bed • 2 bath • 564 ft²
3 bedroom end of terrace house for sale in Leegrange Road, Blackley, Manchester, M9 — £250,000 • 3 bed • 2 bath • 723 ft²










































































