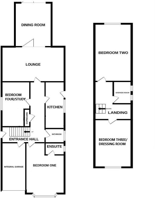
**Standout Features:**
- Four spacious bedrooms
- Stylish 20'2 lounge with modern wood flooring and fireplace
- Contemporary fitted kitchen measuring 15'10
- Elegant 14'2 orangery leading to a large west-facing garden
- Three bathrooms, including two shower rooms and a ground floor bathroom
- Garage and off-road parking available
- Freehold tenure, Council Tax Band D, and EPC Rating C
**Key Summary:**
Discover this beautifully presented four-bedroom semi-detached chalet bungalow, showcasing exceptional style and functionality in a sought-after area of Clacton. Boasting approximately 1,614 square feet of living space, this home features a welcoming lounge, a modern kitchen, and an inviting orangery that seamlessly connects to a generous west-facing garden—perfect for outdoor entertaining or relaxation.
This property is conveniently located near local shopping amenities and has easy access to public transport for quick trips to Clacton's town center. It’s in the vicinity of reputable schools with Good Ofsted ratings, making it an ideal option for families. Additional positives include gas heating, double glazing, and a large plot size, providing both comfort and potential for further renovation or extensions.
While the property is in show home condition, it's important to note that the cavity walls are assumed to have no insulation, which may require consideration for energy efficiency improvements. With low crime rates and excellent broadband connectivity, this home offers a perfect blend of security and modern comfort. Seize the opportunity to make this delightful property your own—homes of this quality don't last long!
4 bedroom chalet for sale in Jaywick Lane, Clacton On Sea, Essex, CO16 — £300,000 • 4 bed • 3 bath • 1098 ft²
3 bedroom chalet for sale in Hawthorn Road, Clacton-on-Sea, CO15 — £325,000 • 3 bed • 1 bath • 1131 ft²
4 bedroom chalet for sale in Thorpe Road, Clacton-on-Sea, CO15 — £450,000 • 4 bed • 3 bath
4 bedroom bungalow for sale in Burrs Road, Great Clacton, CO15 — £325,000 • 4 bed • 2 bath • 1432 ft²
4 bedroom detached bungalow for sale in Hawthorn Road, Clacton-On-Sea, CO15 — £300,000 • 4 bed • 2 bath • 1335 ft²
4 bedroom chalet for sale in London Road, Clacton-on-Sea, CO15 — £399,995 • 4 bed • 2 bath






















































































































































