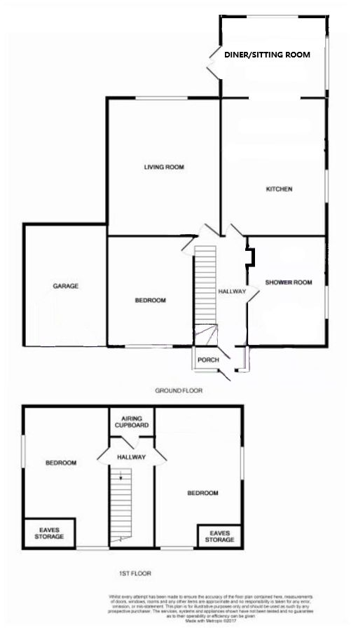
**Key Features of the Property:**
- Three double bedrooms in a detached chalet-style bungalow
- Recently refurbished to a high standard
- Spacious 15'3 lounge and a bright 17' kitchen with contemporary fittings
- Refitted ground-floor shower room
- Off-road parking and a garage
- Located on a substantial corner plot with a garden
- Excellent mobile signal and fast broadband speeds
- Good local schools nearby with positive Ofsted ratings
This beautifully presented three-bedroom detached chalet-style bungalow is a hidden gem in Clacton's desirable neighborhood. With its recent high-quality refurbishment, this home offers a blend of comfort and modern style, featuring a spacious lounge, an inviting open-plan kitchen and dining area, and an updated ground-floor shower room. Set on a generous corner plot, the property enjoys picturesque outdoor space along with the convenience of off-road parking and a garage.
Ideally situated just a stone's throw from local amenities and accessible public transportation, this home is perfect for families or first-time buyers seeking both space and community. Residents will appreciate the surrounding area, which features schools with good ratings, making it ideal for young families.
Act quickly to seize this unique opportunity, as properties with such a fantastic blend of features and location are rare finds on the market!
3 bedroom detached bungalow for sale in London Road, Clacton-On-Sea, CO15 — £325,000 • 3 bed • 1 bath • 872 ft²
4 bedroom chalet for sale in Thorpe Road, Clacton-on-Sea, CO15 — £450,000 • 4 bed • 3 bath
4 bedroom chalet for sale in Thorpe Road, Clacton-on-Sea, CO15 — £425,000 • 4 bed • 3 bath • 1614 ft²
3 bedroom bungalow for sale in St. Johns Road, Clacton-on-Sea, Essex, CO16 — £290,000 • 3 bed • 1 bath • 1264 ft²
3 bedroom detached bungalow for sale in Mountview Road, East Clacton, Essex, CO15 — £350,000 • 3 bed • 1 bath • 862 ft²
3 bedroom detached bungalow for sale in Bramble Way, Clacton-on-Sea, CO15 — £355,000 • 3 bed • 2 bath • 1035 ft²


































































