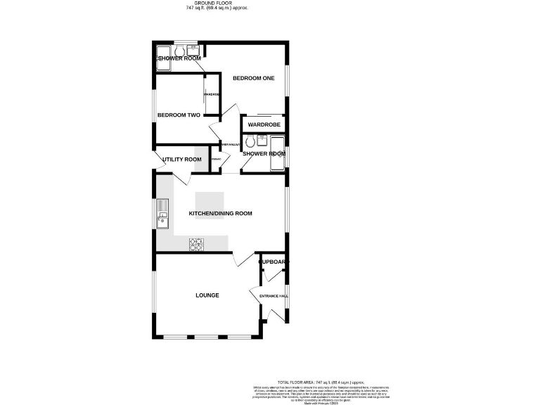
**Key Features:**
- Brand new, detached park home (20ft x 44ft)
- 2 bedrooms, 2 modern shower rooms
- Stylish and contemporary design, fully residential
- Gas central heating and double glazing
- Off-street parking for 2 cars
- Spacious lawned gardens in a picturesque countryside setting
- Part of a secure gated community with onsite facilities
- Monthly pitch fee of £270.73 applies
Discover your new home in this beautifully designed, brand-new park home located in the serene setting of Gateforth Park, near Selby. This 2-bedroom, 2-bathroom property boasts a spacious layout with an inviting lounge, an open-plan kitchen and dining area, and practical utilities, making it perfect for small families or couples seeking comfort and convenience.
Enjoy the tranquillity of countryside living while relishing the modern features, including gas central heating and double glazing, which ensure year-round comfort. The exterior offers generous lawned gardens both front and rear, complemented by a private driveway for off-street parking. This home is chain-free and available for quick possession, providing a unique opportunity to step into a vibrant community with onsite amenities.
Potential buyers should note the monthly pitch fee and the appealing aspect of a secure gated community. Don’t miss out—properties like this, blending modern living with a stunning location, are highly sought after and may not be available for long!
2 bedroom park home for sale in Woodland View, Gateforth Park, Selby, YO8 — £260,210 • 2 bed • 2 bath • 880 ft²
2 bedroom park home for sale in Lyndale Park, School Croft, Brotherton, WF11 — £140,000 • 2 bed • 2 bath • 588 ft²
2 bedroom park home for sale in Caesars Close, Gateforth Park, YO8 — £269,000 • 2 bed • 2 bath • 827 ft²
2 bedroom house for sale in St. George Close, Gateforth Park, Selby, YO8 — £180,000 • 2 bed • 2 bath • 834 ft²
2 bedroom park home for sale in Ryther Road, Ulleskelf, Tadcaster, LS24 — £200,000 • 2 bed • 2 bath • 777 ft²
2 bedroom park home for sale in Henwood Drive, Gateforth Park, Selby, YO8 — £170,000 • 2 bed • 2 bath • 830 ft²










































































