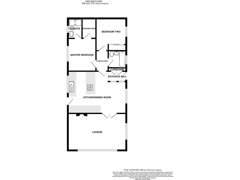
**Standout Features:**
- Brand new detached 20ft x 44ft park home
- Two spacious bedrooms with two modern bathrooms
- Open-plan kitchen/dining area with integrated appliances
- Gas central heating and double glazing throughout
- Idyllic countryside setting in a secure gated community
- Off-street parking and open lawned gardens
- Chain-free with a pitch fee of £270.73 pcm
This stunning, newly-built two-bedroom park home in the serene Gateforth Park, Selby, offers the perfect blend of modern living and a tranquil countryside setting. Spanning approximately 880 square feet, the home features an inviting entrance hall leading to a spacious lounge and a contemporary kitchen/dining room, ideal for entertaining and family gatherings. The master suite boasts a dressing room and ensuite shower, while a second bedroom and additional bathroom provide ample space for guests or family.
Enjoy the comfort of gas central heating and double glazing, ensuring a cozy atmosphere year-round. Outside, the property features picturesque open-plan gardens and a driveway accommodating off-street parking for two cars. Set within a secure gated community, this park home is ideal for first-time buyers or investors looking for a low-maintenance lifestyle in a high-demand area. Don’t miss this exclusive opportunity to own a stylish, modern residence in a peaceful locale.
2 bedroom park home for sale in Woodland View, Gateforth Park, Selby, YO8 — £267,915 • 2 bed • 2 bath • 880 ft²
2 bedroom park home for sale in Lyndale Park, School Croft, Brotherton, WF11 — £140,000 • 2 bed • 2 bath • 588 ft²
2 bedroom park home for sale in Caesars Close, Gateforth Park, YO8 — £269,000 • 2 bed • 2 bath • 827 ft²
2 bedroom house for sale in St. George Close, Gateforth Park, Selby, YO8 — £180,000 • 2 bed • 2 bath • 834 ft²
2 bedroom park home for sale in Ryther Road, Ulleskelf, Tadcaster, LS24 — £200,000 • 2 bed • 2 bath • 777 ft²
2 bedroom park home for sale in Pheasant Way, Acaster Malbis, York, YO23 — £160,000 • 2 bed • 2 bath • 671 ft²






























































































