Spacious two-bed period apartment opposite Hampstead Heath — ideal renovation project for families.
Opposite Hampstead Heath — excellent green space access
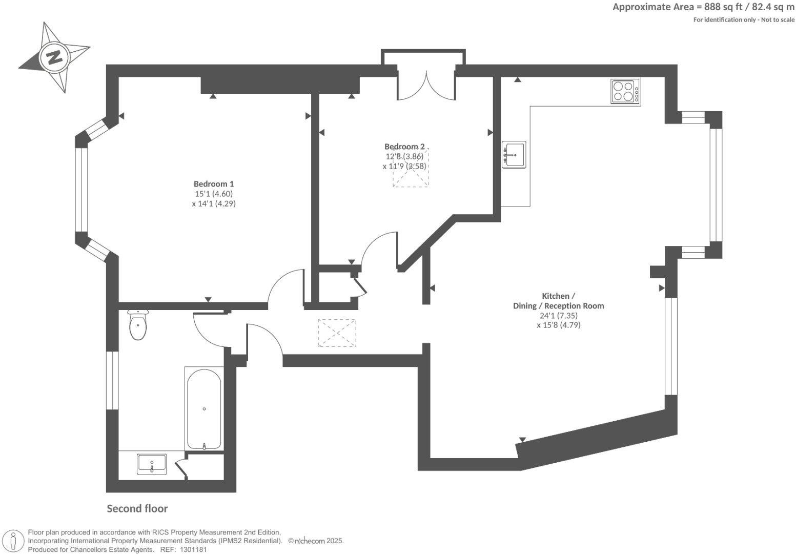
Set on the top floor of a red-brick period house opposite Hampstead Heath, this two-bedroom apartment offers substantial space (c. 888 sq ft) and strong potential to create a comfortable family home. High ceilings and bay-windowed Victorian character provide an attractive canvas for an open-plan kitchen/reception redesign. The long lease (999 years from 1997) removes typical leasehold concerns.
The flat does require full updating and cosmetic renovation; buyers should budget for modernisation including likely improvements to insulation and finishes. There is one bathroom and traditional boiler-and-radiator heating on mains gas. Council tax is high in this area and recorded local crime levels are above average — buyers should consider security and ongoing running costs.
This location suits families who value access to green space and excellent local schools, with Hampstead Heath and strong independent and state schools within easy reach. Broadband and mobile connectivity are excellent. The property is offered with a public notice of an existing offer; prospective buyers seeking a project in a highly desirable NW3 location will find clear upside after renovation.
2 bedroom flat for sale in Holford Road, London, NW3 — £795,000 • 2 bed • 1 bath • 1139 ft²
1 bedroom flat for sale in South Hill Park, Hampstead NW3 — £650,000 • 1 bed • 1 bath • 725 ft²
4 bedroom flat for sale in Heath Drive, Hampstead, London, NW3 — £1,900,000 • 4 bed • 3 bath • 2125 ft²
3 bedroom flat for sale in West Heath Road, Hampstead, London, NW3 — £1,195,000 • 3 bed • 2 bath • 1740 ft²
4 bedroom maisonette for sale in West Heath Road, Hampstead, London, NW3 — £1,650,000 • 4 bed • 3 bath • 1905 ft²
2 bedroom flat for sale in Constantine Road, London NW3 — £695,000 • 2 bed • 1 bath • 790 ft²






















































































