Chain-free, ready-to-live suburban home with scope for value uplift.
Three-bedroom detached house with integral single garage and driveway parking
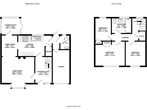
Ready-to-move three-bedroom detached house in a quiet Taunton cul-de-sac, offered chain-free and vacant. The layout suits family life: entrance hall, living room, separate dining room opening to a conservatory, kitchen with storage and ground-floor WC. Two double bedrooms, a good-sized third bedroom and a single family bathroom sit upstairs. An integral single garage and driveway give useful parking and storage.
The property is a mid‑late 20th century brick build with uPVC windows and a tiled roof. Accommodation is practical rather than bespoke; the conservatory adds informal space but is lower value than a full brick extension. The small to average rear garden is low‑maintenance. Total internal size is modest (around 776 sq ft), so space-conscious buyers should note room proportions are typical for this era.
There is clear potential to add value by modernising the kitchen and bathroom or by reconfiguring the garage (subject to planning/consent). For investors the location and layout are straightforward to rent. For families, nearby amenities and several primary schools (including good-rated options) make the address convenient. The area is described as comfortable suburbia within a very affluent wider area, with low crime and excellent mobile/broadband connectivity.
Material considerations: the house reflects its era and will benefit from updating rather than cosmetic fixes alone. Buyers should budget for kitchen and bathroom modernisation if aiming for contemporary standards. No flood risk is recorded. Tenure is freehold.
3 bedroom detached house for sale in Bloomfield Close, Taunton, TA1 — £245,000 • 3 bed • 1 bath • 942 ft²
3 bedroom detached house for sale in The Fairways, Taunton, TA1 — £375,000 • 3 bed • 1 bath • 902 ft²
3 bedroom detached house for sale in Kingston Close, Taunton, Somerset, TA2 — £350,000 • 3 bed • 1 bath • 1044 ft²
3 bedroom detached house for sale in Calder Crescent, TAUNTON, TA1 — £300,000 • 3 bed • 2 bath • 704 ft²
3 bedroom detached house for sale in Thames Drive, Taunton, TA1 — £325,000 • 3 bed • 1 bath • 886 ft²
4 bedroom detached house for sale in Peile Drive - North Taunton, TA2 — £475,000 • 4 bed • 2 bath • 917 ft²


































































































