NE47 0JF - 3 bed stone farmhouse with land in Steel, NE47 0JF

View on Property Piper

3 bedroom house for sale in Stobby Lea, Steel, Hexham, Northumberland, NE47

Summary - East Stobby Lea, Stobby Lea, Steel NE47 0JF

3 bed 1 bath House

Large period farmhouse with barns and three acres — renovation project with excellent potential.
Detached stone farmhouse with circa 3 acres and large outbuildings for development potential
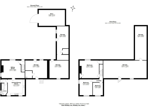
Extremely large overall size ~3,111 sq ft; natural courtyard from L-shaped stone barns
Requires renovation and modernisation throughout; EPC rating E
Private water spring, private drainage (sewage treatment), mains electric, oil central heating
Very slow broadband and no mobile signal — poor digital connectivity
Access via unmade, partly shared track; maintenance shared by users
Walls likely uninsulated (traditional stone) — thermal upgrades recommended
Parking off-street; quiet hamlet location with very low crime
A substantial three-bedroom stone farmhouse set in approximately three acres of paddock and traditional farm buildings, East Stobby Lea offers wide rural views across Hexhamshire. The house is spacious (circa 3,111 sq ft), detached and composed of period sandstone/limestone construction, with double glazing, oil-fired heating and a private spring water supply. The roof was partly renewed in 2020 and there is a natural courtyard formed by the attractive L-shaped range of attached stone barns.

For buyers seeking a rural project, the property provides significant scope: the large outbuildings and attached barns could be adapted or extended, subject to planning and listed-building/consent requirements. The land is well fenced and immediately accessible from the steading, with a public bridleway adjacent — suitable for small-holding or equine use and immediate hacking from the doorstep.

Material drawbacks are clear and important. The farmhouse needs renovation and modernisation throughout; internal wall insulation is assumed absent in the original stone walls. Utilities are basic: private drainage to a septic/treatment plant, mains electricity, oil central heating (not a community supply), very slow broadband and no mobile signal. The EPC is rated E. Access is via an unmade, partly shared track; maintenance of the track is shared by users. Sporting and mineral rights are excluded from the sale.

This is a countryside proposition for buyers who value space, character and development potential over immediate turnkey convenience. It will suit purchasers comfortable with rural living, renovation works and securing any necessary consents for barn conversion or extension.

Property Details

Image Descriptions

Floorplan Description

Rooms

Textual Property Features

Target Audience

AI Tags

Detected Visual Features

EPC Details

Nearby Schools

Nearest Bars And Restaurants

,,,,}

Nearest General Shops

,,}

Nearest Grocery shops

,,}

Nearest Supermarkets

,,}

Nearest Religious buildings

,,}

Nearest Medical buildings

,,,}

Nearest Leisure Facilities

,,,,}

Nearest Tourist attractions

,,}

Nearest Train stations

,,,,}

Nearest Bus stations and stops

,,,,}

Nearest Hotels

,,}

Tags

Local Market Stats

Similar Properties

Meta

High Res Images

Compatible Images

Low res Images

Thumbnails

Raw Images

High Res Floorplan Images

Compatible Floorplan Images

Low res Floorplan Images

FloorplanImages Thumbnail

Raw Floorplan Images