Spacious plot and parking with clear extension potential for renovators.
Corner plot with huge garden and excellent vehicle parking
Previous planning permission to extend (now lapsed)
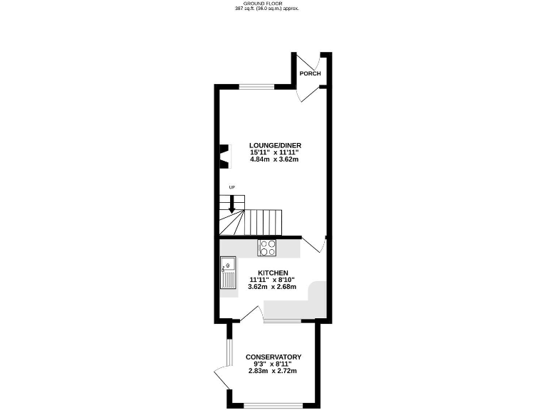
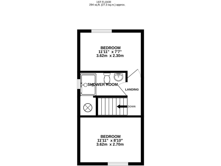
Two double bedrooms and ground-floor sun room/conservatory
Dated interior and fixtures; requires modernization
Night storage/electric heating — potentially higher running costs
UPVC double glazing installed before 2002
Garden shed/workshop with light and power included
Freehold; low local crime and cheap council tax (Band B)
Set on a large corner plot at the end of a cul-de-sac, this two-bedroom semi offers practical family living with clear future potential. The ground floor provides a generous living room, kitchen and a sun room that opens to enclosed patios and raised beds — useful daily space and easy indoor-outdoor flow. A gated side area and shed/workshop with light and power add hobby or storage options.
Key value drivers are the unusually large plot and hardstanding that accommodates numerous vehicles, plus previous (now lapsed) planning permission indicating extension potential subject to fresh consent. The property is freehold, in a quiet residential location close to Penryn amenities, schools and transport links — handy for commuting or student rental via nearby university campus.
Practical drawbacks are straightforward: the home has night storage/room heaters and all-electric heating which can be costly, décor and some fittings are dated and will require modernization, and the earlier planning consent has lapsed so any extension would need reapplication. Double glazing is installed but predates 2002. Buyers should also note the property is compact overall and best suited to those seeking an economical starter or a renovation/investment project rather than a turnkey, larger family home.
Viewing is recommended for purchasers who value the site, parking and extension possibilities. This house is a strong proposition for buyers willing to update interiors or pursue modest enlargement to maximise floor area and long-term value.
2 bedroom semi-detached house for sale in Penryn, TR10 — £235,000 • 2 bed • 1 bath • 772 ft²
4 bedroom semi-detached house for sale in Boslowick Road, Falmouth, TR11 — £395,000 • 4 bed • 2 bath • 998 ft²
3 bedroom semi-detached house for sale in Little Oaks, Penryn, TR10 — £275,000 • 3 bed • 1 bath • 689 ft²
3 bedroom semi-detached house for sale in Falmouth, TR11 — £300,000 • 3 bed • 1 bath • 645 ft²
4 bedroom semi-detached house for sale in Penryn, TR10 — £340,000 • 4 bed • 1 bath • 407 ft²
3 bedroom semi-detached house for sale in Penryn, TR10 — £350,000 • 3 bed • 1 bath • 1287 ft²






































































