NR6 6XJ - 2 bedroom bungalow for sale in Prince Andrews Road, Hellesd…

View on Property Piper

2 bedroom bungalow for sale in Prince Andrews Road, Hellesdon, Norwich, Norfolk, NR6

Summary - Prince Andrews Road, Hellesdon, Norwich, Norfolk, NR6 NR6 6XJ

2 bed 1 bath Bungalow

Large plot, single-level living and a 32ft garage — ideal for downsizers seeking convenience.
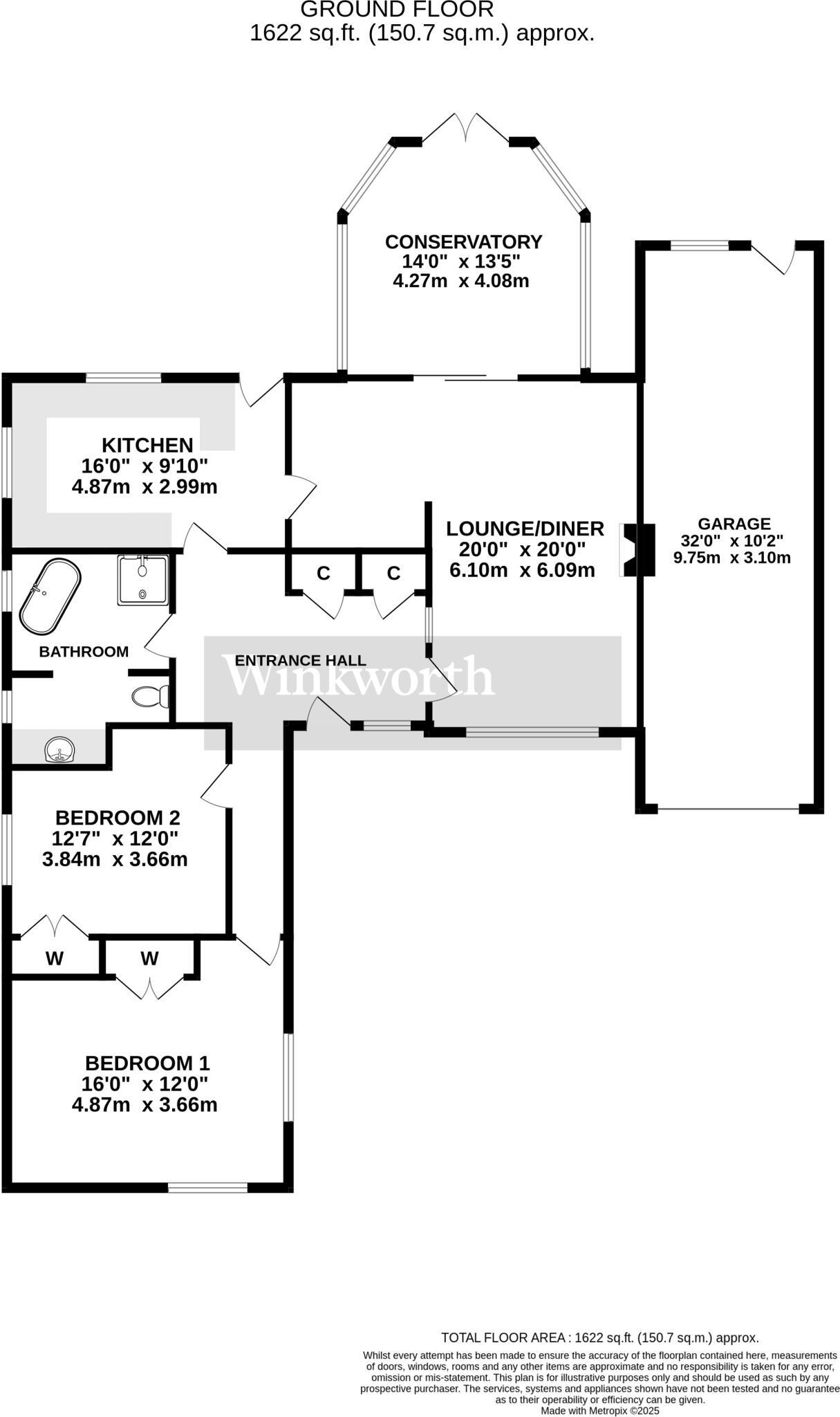
Detached two-bedroom bungalow on a large, fully established plot
20ft L-shaped lounge/diner plus 14ft conservatory to rear garden
Modern kitchen/breakfast room; parquet entrance hall
Generous driveway with ample parking and a 32ft garage
Private, enclosed rear garden with patio, greenhouse and shed
Double glazing and gas central heating; fast broadband and mobile signal
Single four-piece family bathroom only; no en-suite facilities
Property dates from the 1970s — some buyers may want cosmetic updating
Set on a generous, fully established plot in north Norwich, this detached two-bedroom bungalow offers comfortable single-level living and strong kerb appeal. The accommodation includes a spacious entrance hall with parquet flooring, an L-shaped 20ft lounge/diner flowing to a 14ft conservatory, a modern kitchen/breakfast room and two generous double bedrooms served by a four-piece family bathroom.

Outside provides a well-maintained front lawn, wide driveway with ample parking and access to a substantial 32ft garage, plus a private rear garden with patio, greenhouse and shed. Practical comforts include double glazing and gas central heating, and the property sits in a very affluent area with fast broadband and excellent mobile signal.

This bungalow will suit buyers seeking easy single-storey living or downsizers looking for space and storage. Note that there is a single family bathroom only, the property dates from the 1970s so some buyers may want to update cosmetic elements or services, and mains services/appliances have not been independently tested. Local schools are nearby (mixed Ofsted outcomes), and transport links give convenient access to Norwich city centre.

Property Details

Image Descriptions

Rooms

Textual Property Features

Target Audience

AI Tags

Detected Visual Features

Nearby Schools

Nearest Bars And Restaurants

,,,,}

Nearest General Shops

,,}

Nearest Grocery shops

,,}

Nearest Supermarkets

,,}

Nearest Religious buildings

,,}

Nearest Medical buildings

,,,}

Nearest Leisure Facilities

,,,,}

Nearest Tourist attractions

,,}

Nearest Train stations

,,,,}

Nearest Bus stations and stops

,,,,}

Nearest Hotels

,,}

Tags

Local Market Stats

AirBnB Data

Similar Properties

Meta

High Res Images

Compatible Images

Low res Images

Thumbnails

Raw Images

High Res Floorplan Images

Compatible Floorplan Images

Low res Floorplan Images

FloorplanImages Thumbnail

Raw Floorplan Images