Exclusive five-home development with generous garden and flexible living spaces.
Spacious 28ft kitchen/dining/living with island and bifold doors
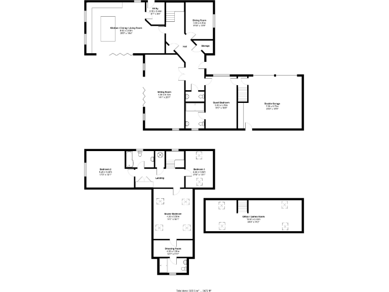
Step into a substantial, high-spec chalet-style home set on a large corner plot within an exclusive five-house development on Dereham’s edge. The house offers generous, well-planned living: a 28ft kitchen/dining/living area with island and bifolding doors, a 26ft sitting room also with bifolds, plus a separate dining room and flexible accommodation across two floors. The internal area approaches 3,500 sq ft including the double garage, giving clear room for family life and home working.
Practical specification is a key strength: built in 2021 with high-efficiency air-source heating, underfloor heating to the ground floor and good thermal performance. Two of the four double bedrooms have en-suite facilities; the master includes a dressing room and roof lights. Above the integral double garage is a 34ft office/games room — ideal for a home business, studio or playroom, and readily adaptable to further bedroom accommodation if required.
Outside, the property benefits from a south-westerly facing, professionally landscaped garden and a wide private driveway with space for several cars. The quiet village location combines countryside calm with easy access to Dereham’s amenities, good local schools and links into Norwich.
A few practical points to note: heating is electric via the air-source pump (running costs will depend on tariff and usage), mobile signal is average, and the development is small and private which may limit through-traffic but also means shared maintenance expectations. There are two main bathrooms for four bedrooms, so families wanting multiple full bathrooms may wish to consider potential adaptations.
5 bedroom detached house for sale in Oak Road, Dereham, NR20 — £425,000 • 5 bed • 3 bath • 1895 ft²
5 bedroom detached house for sale in Fieldings Drive, Yaxham, NR19 — £550,000 • 5 bed • 3 bath • 2400 ft²
4 bedroom detached house for sale in Dereham Road,
Easton,
NR9 5EG, NR9 — £495,000 • 4 bed • 1 bath • 1206 ft²
4 bedroom detached house for sale in Union Drift, Dereham, NR20 — £485,000 • 4 bed • 2 bath • 1647 ft²
4 bedroom detached house for sale in Brailsford Close, Dereham, NR20 — £400,000 • 4 bed • 2 bath • 1565 ft²
4 bedroom detached bungalow for sale in Warner Avenue, Dereham, NR19 — £375,000 • 4 bed • 2 bath • 1229 ft²






















































































































































































