Large detached family home with huge open-plan living and private gated gardens.
Private gated entrance and ample off-street parking for many vehicles
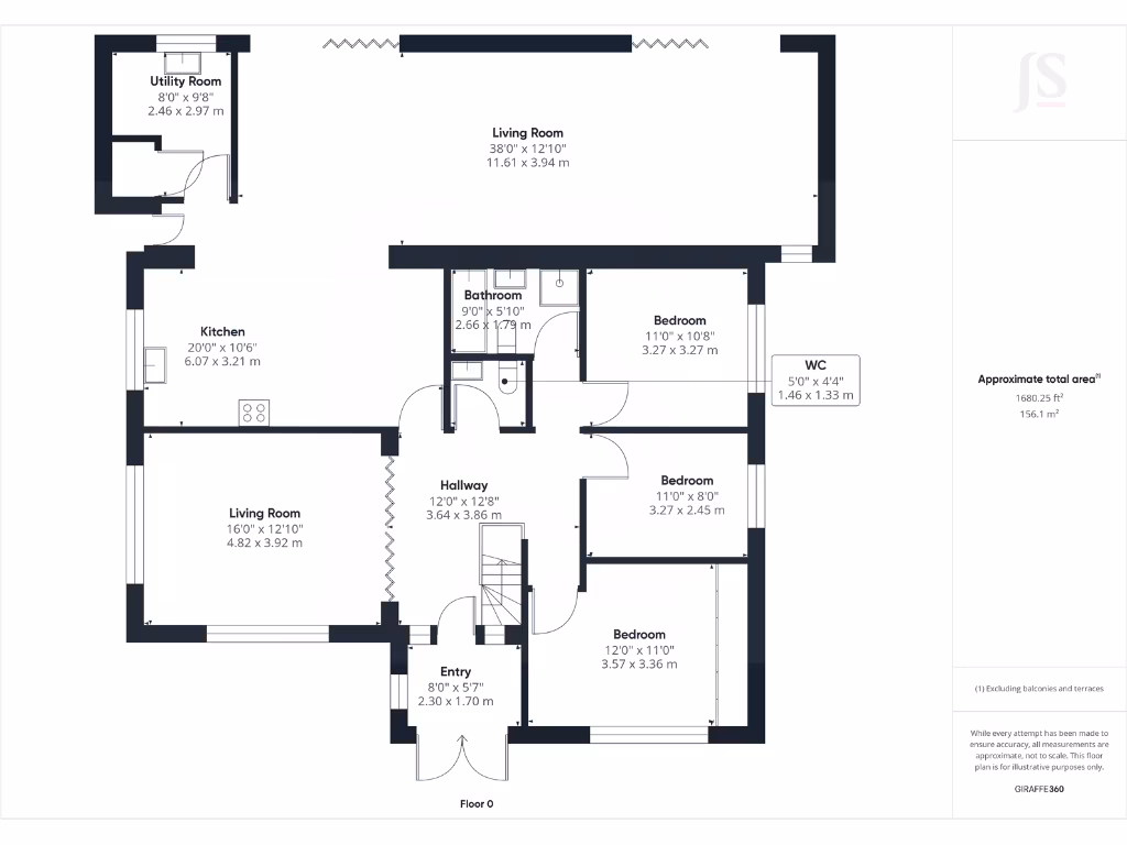
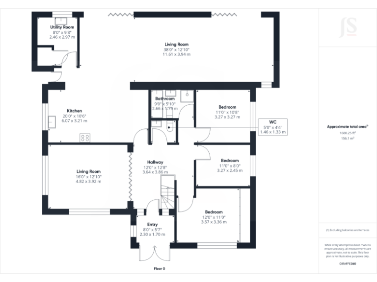
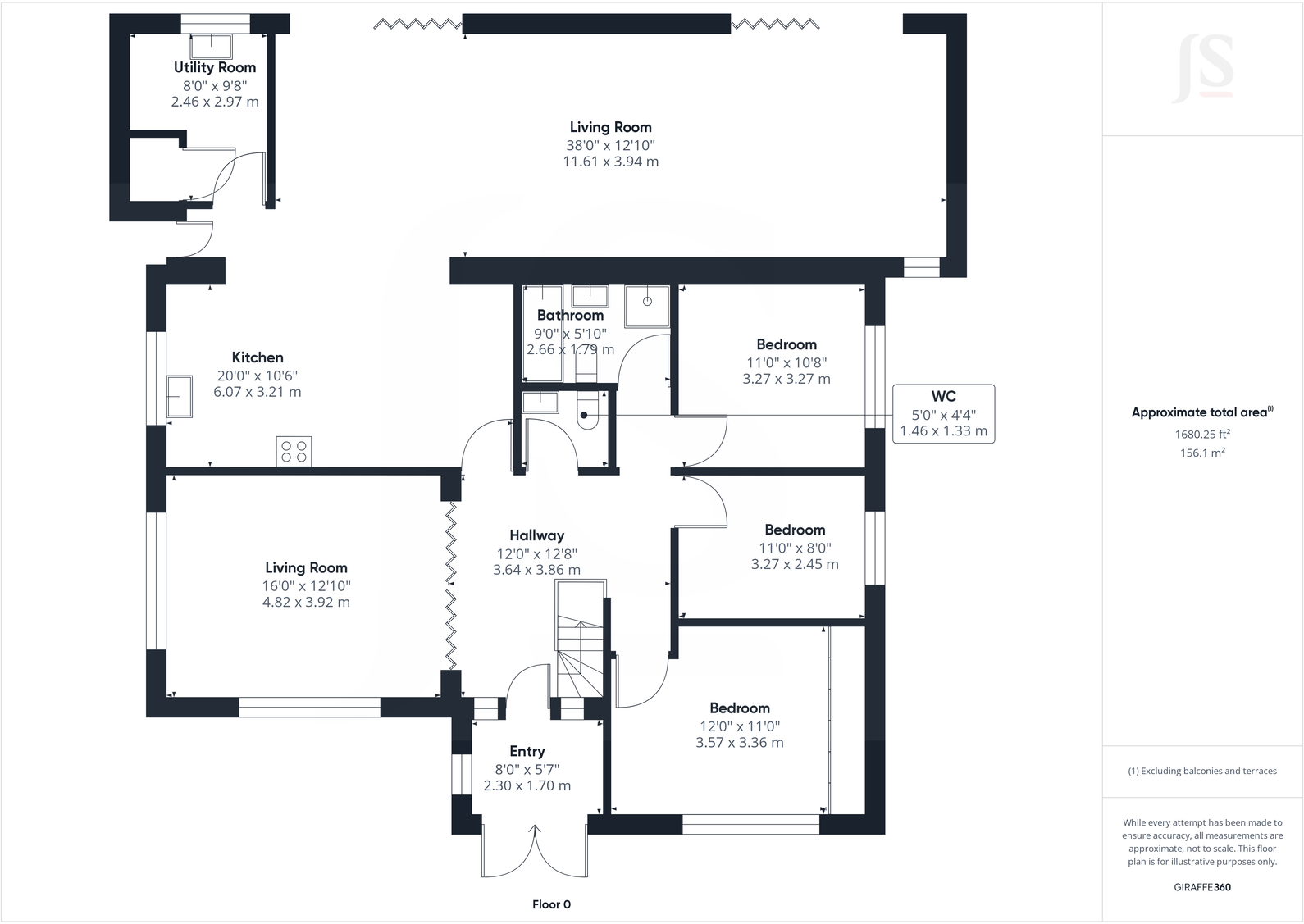
This substantial five-bedroom chalet bungalow delivers flexible family living across two floors, centred on an extended 36–38ft open-plan lounge/dining/kitchen that creates a bright social heart. The house sits behind private gates with extensive off-street parking, a single garage and well-established front and rear gardens, including a koi pond and two secluded outbuildings ideal for a home office or hobby space.
Internally the layout suits multi-generational or downsizer families: three double bedrooms and a family bathroom are on the ground floor, with two generous first-floor bedrooms and an ensuite above the extension. Practical spaces include a utility room, separate ground-floor WC and integrated kitchen appliances. The property was extensively modernised to form the large extension and benefits from double glazing installed since 2002 and mains gas central heating.
Buyers should note some fabric details and running costs. The external walls are cavity construction with no added insulation assumed, and the house dates from the 1930s–1940s, so older elements may remain. Council tax is Band F and therefore relatively expensive. The wider area is described as ageing urban communities and communal retirement, which may influence local services and neighbour profile.
Location is convenient for commuting and family life: Sompting and Lancing amenities are nearby, Lancing station is about a mile away and the A27 provides quick routes to Worthing and Brighton. Overall this is a large, well-presented detached family home offering immediate move-in benefit plus scope to personalise and future-proof with targeted improvements to insulation and any remaining original elements.
4 bedroom chalet for sale in Abbey Road, Sompting, Lancing, BN15 — £500,000 • 4 bed • 2 bath • 1241 ft²
4 bedroom semi-detached house for sale in Herbert Road, Sompting, West Sussex, BN15 — £450,000 • 4 bed • 2 bath • 1365 ft²
5 bedroom semi-detached bungalow for sale in Berriedale Drive, Sompting, Lancing, BN15 — £500,000 • 5 bed • 2 bath • 1317 ft²
3 bedroom bungalow for sale in Western Road, Sompting, West Sussex, BN15 — £425,000 • 3 bed • 1 bath • 1538 ft²
5 bedroom detached house for sale in Browning Road, Lancing, West Sussex, BN15 — £700,000 • 5 bed • 2 bath • 2015 ft²
5 bedroom semi-detached house for sale in Upper Brighton Road, Lancing, West Sussex, BN15 — £500,000 • 5 bed • 2 bath • 1247 ft²










































































































