Long rear garden with parking potential close to Doncaster centre.
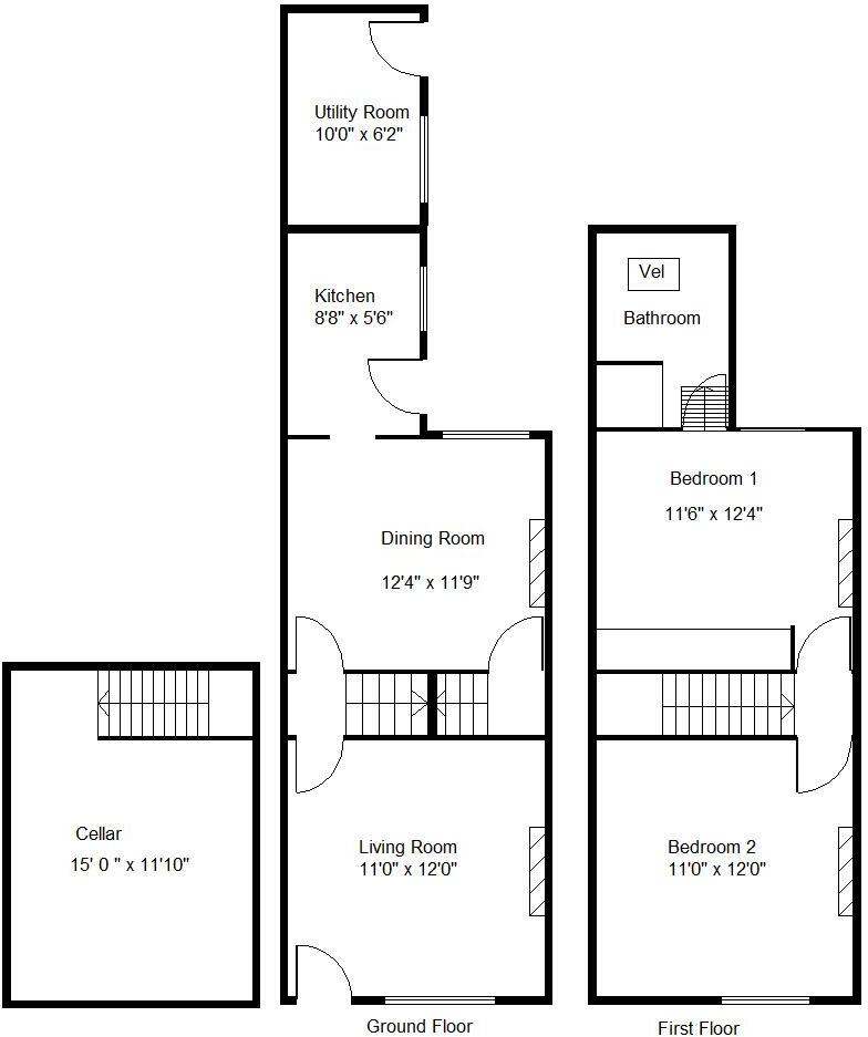
Two double bedrooms and first-floor bathroom
A surprisingly spacious two-double-bedroom Victorian mid-terrace offering practical living close to Doncaster city centre. The house has period features such as high ceilings and fireplaces, plus useful storage including a cellar, built-in wardrobes and a boarded attic. A long rear garden gives scope for off-street parking or a garage (subject to approvals), increasing future value.
Internally the property is habitable and presented neutrally: a front lounge, separate dining room, fitted kitchen, externally accessed utility room and a first-floor bathroom. Gas central heating, PVC double glazing and fast ultrafast broadband make it ready for modern living. Council Tax is low (Band A) and tenure is freehold.
Important facts: the terrace is traditional solid brick (likely no cavity insulation), constructed c.1900–1929, and the boiler age is unspecified. The area has high crime levels and is relatively deprived, which can affect resale yield and lettability. The property will suit a first-time buyer seeking a sensible starter home or an investor after a straightforward buy-to-let with modest cosmetic improvement potential.
Viewings will show practical, comfortable accommodation and clear scope to add value through insulation upgrades, cosmetic modernisation or arranging rear access/parking. Buyers should budget for any energy-efficiency works and check boiler/service records and local safety/crime considerations before purchase.
3 bedroom terraced house for sale in Washington Grove, Bentley, Doncaster, DN5 — £120,000 • 3 bed • 1 bath • 689 ft²
2 bedroom terraced house for sale in Bentley Road, Bentley, DN5 — £90,000 • 2 bed • 1 bath • 730 ft²
2 bedroom terraced house for sale in Daw Lane, Bentley, Doncaster, DN5 — £90,000 • 2 bed • 1 bath • 786 ft²
2 bedroom terraced house for sale in Bentley Road, Bentley, Doncaster, DN5 — £140,000 • 2 bed • 1 bath • 958 ft²
2 bedroom house for sale in Bentley Road, Doncaster, DN5 — £115,000 • 2 bed • 2 bath • 760 ft²
2 bedroom terraced house for sale in Bentley Road, Doncaster, South Yorkshire, DN5 — £110,000 • 2 bed • 1 bath • 865 ft²


















































