Starter home or investor opportunity close to Bentley and Doncaster centres.
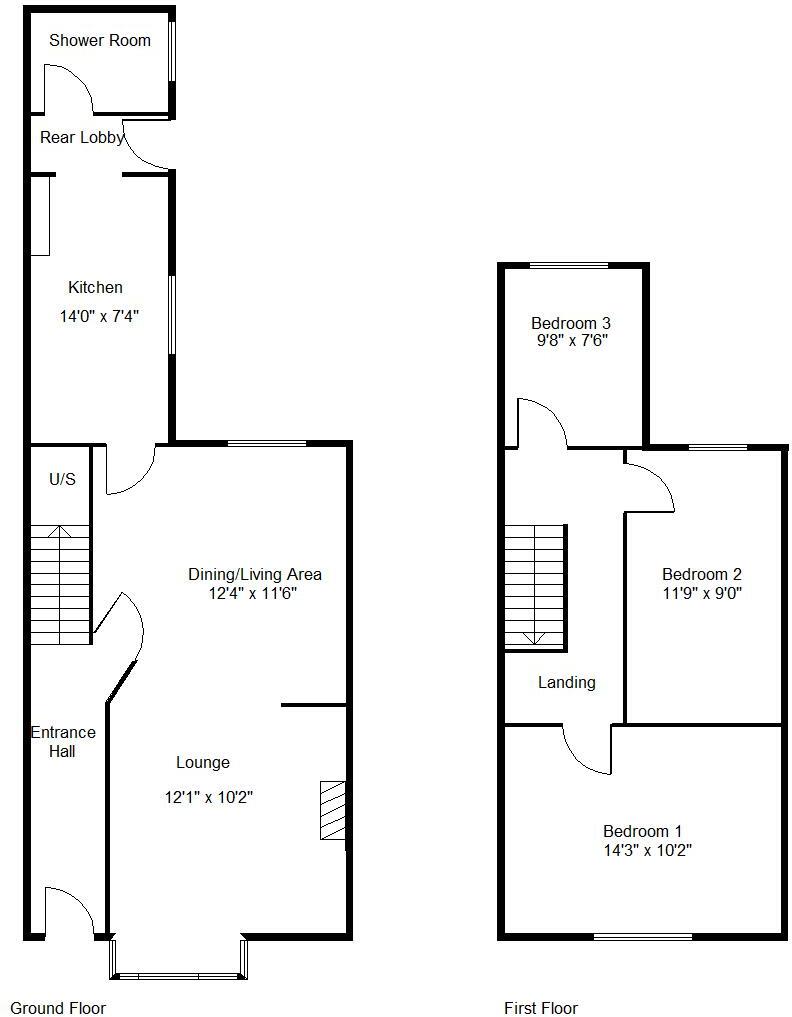
- Three bedrooms across two storeys, practical starter layout
- Modern fitted kitchen with integrated cooking appliances
- Ground-floor shower room recently updated and tiled
- Forecourt front and enclosed rear courtyard with lane access
- Freehold tenure and very low council tax (Band A)
- Area classified as deprived; local crime levels are high
- Solid brick walls likely have no cavity insulation (improvement needed)
- Small plot and compact rooms; limited external space
A compact three-bedroom mid-terraced house arranged over two storeys, offered freehold with a forecourt and enclosed rear courtyard. Interiors combine period proportions with recent upgrades: a fitted grey kitchen with integrated appliances, PVC double glazing and a modern ground-floor shower room. Gas central heating is provided by a combi boiler; broadband and mobile coverage are both strong.
This property suits a first-time buyer or buy-to-let investor seeking a straightforward, low-maintenance starter home close to Bentley and Doncaster city centre. Room sizes are modest but practical, with a long landing and boarded loft storage. The rear courtyard gets afternoon and evening sun and opens onto a rear lane, making external maintenance easy.
Buyers should note the immediate context: the wider area is classified as deprived with higher-than-average crime and constrained rental demographics. The building is an early 20th-century solid-brick terrace and likely has no wall insulation as-built, so some thermal improvements could be beneficial. The house would also respond well to targeted cosmetic updating to maximise value.
3 bedroom end of terrace house for sale in Bishopgarth Close, Doncaster, DN5 — £150,000 • 3 bed • 1 bath • 722 ft²
2 bedroom terraced house for sale in Daw Lane, Bentley, Doncaster, DN5 — £90,000 • 2 bed • 1 bath • 786 ft²
3 bedroom terraced house for sale in Redbourne Road, Bentley, Doncaster, DN5 — £99,000 • 3 bed • 1 bath • 722 ft²
3 bedroom terraced house for sale in Church Lane, Bessacarr, Doncaster, DN4 — £159,995 • 3 bed • 1 bath • 956 ft²
2 bedroom terraced house for sale in Washington Grove, Bentley, DN5 — £110,000 • 2 bed • 1 bath • 822 ft²
3 bedroom semi-detached house for sale in Bentley Road, Bentley, Doncaster, DN5 — £140,000 • 3 bed • 1 bath


































































