**Standout Features:**
- Prime High Street location in Poole, Dorset
- Former bank premises with a modern, open-plan layout
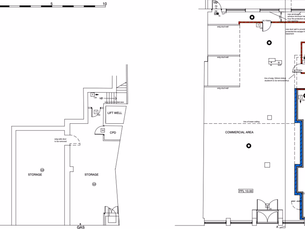
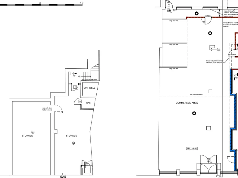
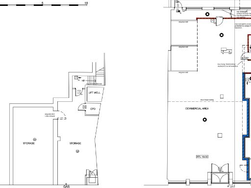
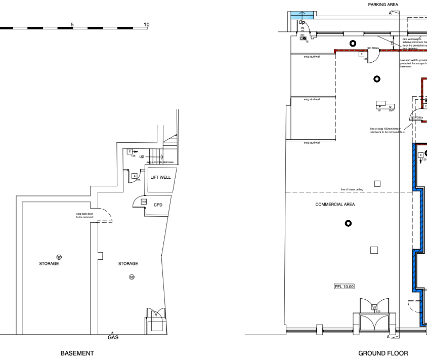
- Ground floor space of 1,805 SqFt and basement of 880 SqFt
- Two allocated parking spaces
- Flexible planning consent for Class E Commercial use
- Close proximity to retail giants and independent shops
**Summary:**
This impressive high street retail property is strategically located in the heart of Poole, offering unparalleled visibility and foot traffic, surrounded by popular retailers such as The Entertainer and Taco Bell. The spacious former bank building features a modern open-plan configuration ideal for retail or office use, spanning a generous 2,685 SqFt, which presents a fantastic opportunity for businesses looking to capitalize on a prime location. With two designated parking spaces, convenience is ensured for both employees and customers.
Though the property is in good condition, prospective buyers should note that restroom facilities are yet to be installed, allowing flexibility in their placement according to specific needs. The potential for a freehold acquisition further enhances its appeal, making it suitable for both investors and new business owners alike. Don't miss out on seizing this opportunity to establish a vibrant business presence in a high-demand area!
Commercial property for sale in 12-14 High Street, Poole, Dorset, BH15 — £750,000 • 1 bed • 1 bath • 705 ft²
House for sale in High Street, Poole, BH15 — £450,000 • 1 bed • 1 bath • 4144 ft²
High street retail property for sale in 383 Ashley Road, Poole, Dorset, BH14 — £70,000 • 1 bed • 1 bath
High street retail property for sale in 716-718 Christchurch Road, Bournemouth, Dorset, BH7 — £350,000 • 1 bed • 1 bath • 1755 ft²
High street retail property for sale in 8 Albert Road, Bournemouth, Dorset, BH1 — £119,500 • 1 bed • 1 bath • 1141 ft²
High street retail property for sale in 439-443 Wimborne Road, Bournemouth, Dorset, BH9 — £995,000 • 1 bed • 1 bath • 8540 ft²






























