**Standout Features:**
- Historic 19th-century brick building with modern refurbishments
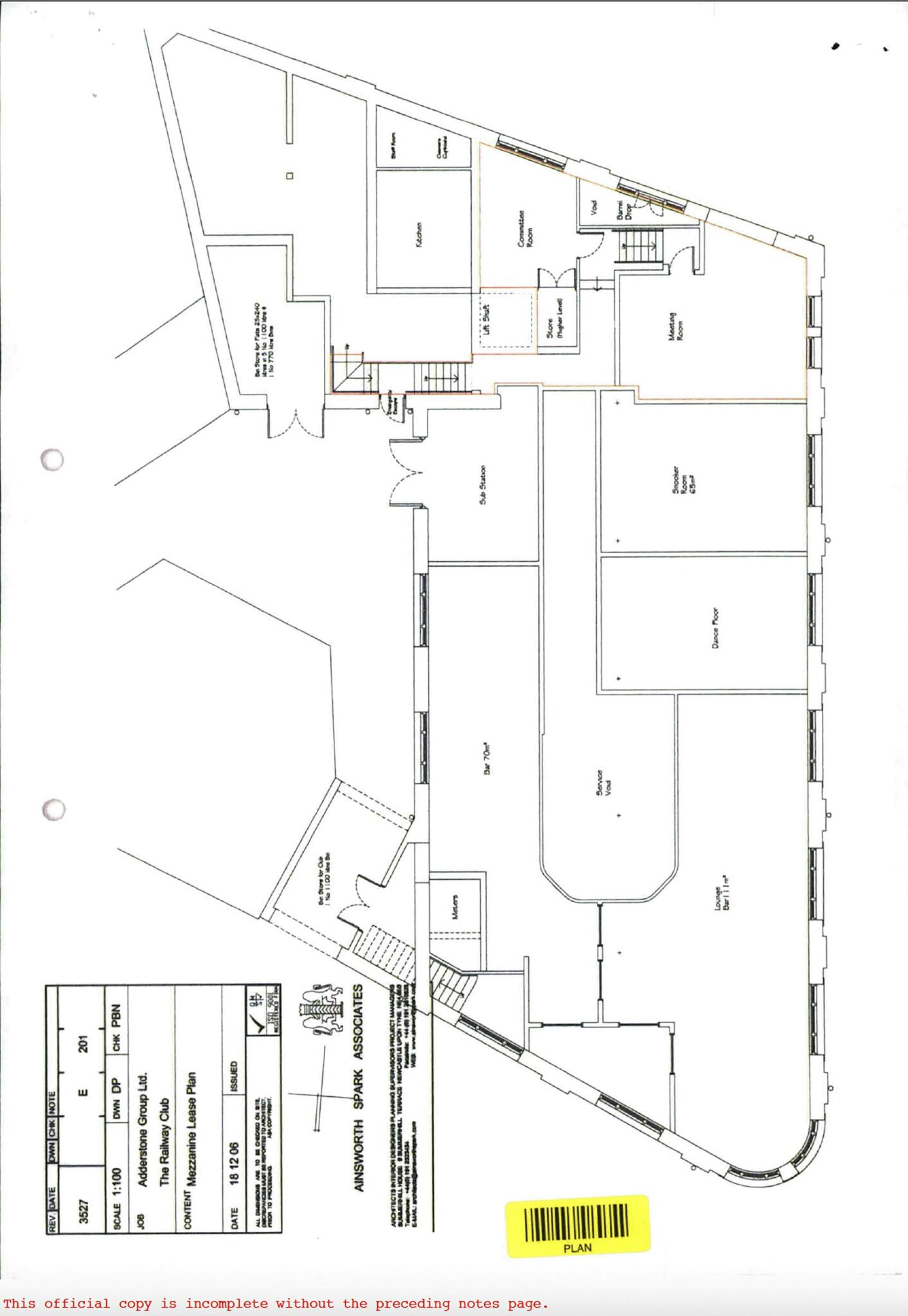
- Expansive ground floor and mezzanine space totaling approximately 3,680 sq. ft.
- Prime location just a 5-minute walk from Newcastle City Centre
- Newly renovated with ample natural light from large windows
- Suitable for various commercial uses, especially bar or leisure
- Long leasehold available (125 years from August 2007)
- Service charge of £9,000 annually
**Summary:**
Discover the potential of this remarkable former railway club located on Wellington Street, a striking 19th-century brick building that combines charm with modernity. Spanning an impressive 3,680 sq. ft., this ground floor and mezzanine commercial unit is perfect for bar or leisure use, offering a unique opportunity in a vibrant urban setting just five minutes from Newcastle City Centre.
Recently refurbished, the spacious interior exhibits high ceilings and an airy open-plan layout drenched in natural light, creating a welcoming atmosphere for both customers and staff. With a long leasehold and diverse usability options, this property is positioned to thrive in the bustling Gateshead district, surrounded by an abundance of local amenities. While the annual service charge is noted at £9,000, the value for such a prime real estate opportunity is undeniable. Ideal for investors and entrepreneurs looking to capitalize on the growing demand for leisure spaces, this property won't be on the market for long—act quickly to realize its extensive potential!
Office for sale in 3A St. James Gate, Newcastle Upon Tyne, Tyne And Wear, NE1 4AD, NE1 — £599,000 • 1 bed • 1 bath • 5153 ft²
Office for sale in Point 5/New Eden House, Fletcher Road, Gateshead, Tyne and Wear, NE8 2ET, NE8 — £550,000 • 1 bed • 1 bath • 3307 ft²
Restaurant for sale in Landmark Restaurant, Stowell Street, Newcastle upon Tyne, NE1 4YB, NE1 — £330,000 • 1 bed • 1 bath • 5517 ft²
Leisure facility for sale in Unique Historic Leisure Premises For Sale in Newcastle, The Cooperage, 32-38 Close, Newcastle upon Tyne, NE1 3RF, NE1 — POA • 1 bed • 1 bath • 6706 ft²
Leisure facility for sale in Scotswood Road, Newcastle Upon Tyne, NE4 — £350,000 • 1 bed • 1 bath • 4260 ft²
Office for sale in 3 Akenside Hill, Newcastle Upon Tyne, Tyne And Wear, NE1 — £450,000 • 1 bed • 1 bath • 3129 ft²


























































