**Standout Features:**
- Prime location, just a 5-minute walk from Central Station
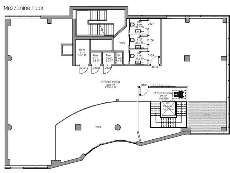
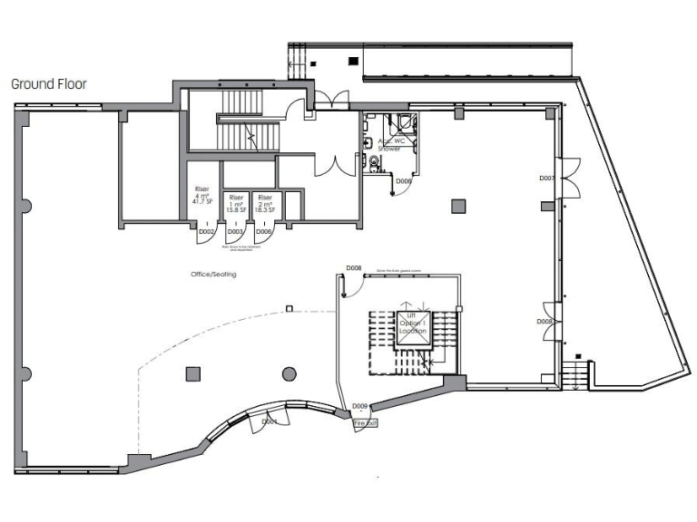
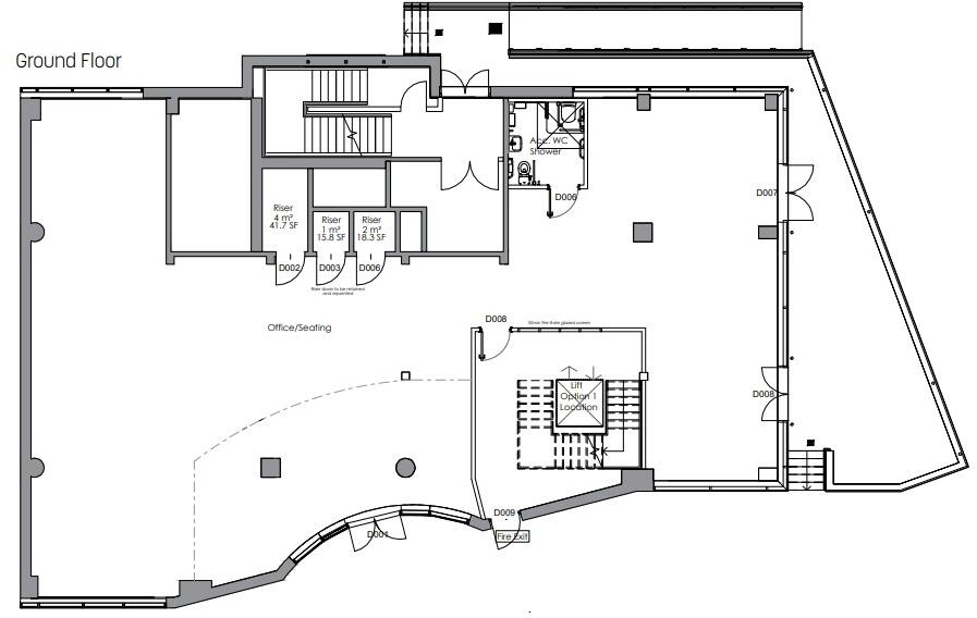
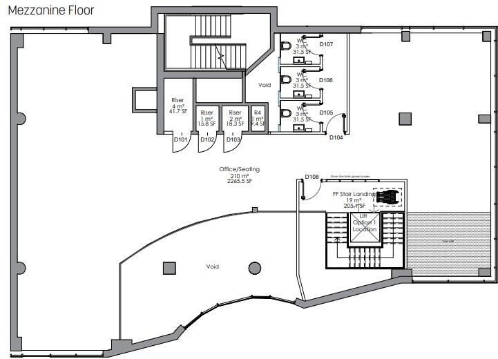
- Massive space of 5,153 square feet, ideal for versatile office configurations
- Newly renovated, Grade A office with industrial design
- Beautifully landscaped courtyard plaza for a vibrant working environment
- LED lighting and sustainable features with an EPC B rating
- Chain-free sale with a 999-year lease remaining
**Concise Summary:**
Discover a unique opportunity at Unit 3A, St James Gate—a modern, self-contained office space boasting 5,153 square feet of prime commercial real estate in one of Newcastle's rapidly developing areas. This newly renovated property combines aesthetic charm with function, featuring high ceilings, exposed service ducts, and expansive windows that flood the space with natural light. Its industrial design is perfect for businesses looking to cultivate a creative and collaborative atmosphere.
Set amidst a vibrant mix of shops and eateries, this premium office is just a short walk from Central Station, ensuring excellent accessibility for employees and clients alike. The property offers a beautiful landscaped courtyard plaza, enhancing the outdoor working experience. Despite its extensive space and modern amenities, potential buyers should note the area's high crime rate and considerable upkeep in urban settings, but with Newcastle being a major tech hub and home to a highly educated workforce, this investment offers immense potential for growth. Don’t miss the chance to secure this remarkable office space in a thriving city center, attracting both established businesses and innovative startups.
 Office for sale in 3A St James' Gate, Newcastle Upon Tyne, NE1 — £599,000 • 1 bed • 1 bath • 5135 ft²
 Office for sale in 3A St James' Gate, Newcastle Upon Tyne, NE1 — £599,000 • 1 bed • 1 bath • 5135 ft² Office for sale in Quayside Lofts, 62 The Close, Newcastle Upon Tyne, Tyne And Wear, NE1 3RJ, NE1 — £200,000 • 1 bed • 1 bath • 1329 ft²
 Office for sale in Quayside Lofts, 62 The Close, Newcastle Upon Tyne, Tyne And Wear, NE1 3RJ, NE1 — £200,000 • 1 bed • 1 bath • 1329 ft² Office for sale in 3 Akenside Hill, Newcastle Upon Tyne, Tyne And Wear, NE1 — £450,000 • 1 bed • 1 bath • 3129 ft²
 Office for sale in 3 Akenside Hill, Newcastle Upon Tyne, Tyne And Wear, NE1 — £450,000 • 1 bed • 1 bath • 3129 ft² Office for sale in Media Exchange, Coquet Street, Newcastle Upon Tyne, Tyne And Wear, NE1 — £375,000 • 1 bed • 1 bath • 2193 ft²
 Office for sale in Media Exchange, Coquet Street, Newcastle Upon Tyne, Tyne And Wear, NE1 — £375,000 • 1 bed • 1 bath • 2193 ft² Office for sale in Point 5/New Eden House, Fletcher Road, Gateshead, Tyne and Wear, NE8 2ET, NE8 — £550,000 • 1 bed • 1 bath • 3307 ft²
 Office for sale in Point 5/New Eden House, Fletcher Road, Gateshead, Tyne and Wear, NE8 2ET, NE8 — £550,000 • 1 bed • 1 bath • 3307 ft² Office for sale in The Old Post Office, St. Nicholas Street, Newcastle Upon Tyne, NE1 — £3,950,000 • 1 bed • 1 bath
 Office for sale in The Old Post Office, St. Nicholas Street, Newcastle Upon Tyne, NE1 — £3,950,000 • 1 bed • 1 bath


























