BR4 9BN - 1 bed chain free retirement studio in Addington Road, BR4 9…

View on Property Piper

Retirement property for sale in Addington Road, West Wickham, BR4

Summary - Flat 14, Beaumont Lodge, Addington Road BR4 9BN

1 bed 1 bath Retirement Property

Chain-free first-floor retirement studio with communal facilities, parking and easy West Wickham access.
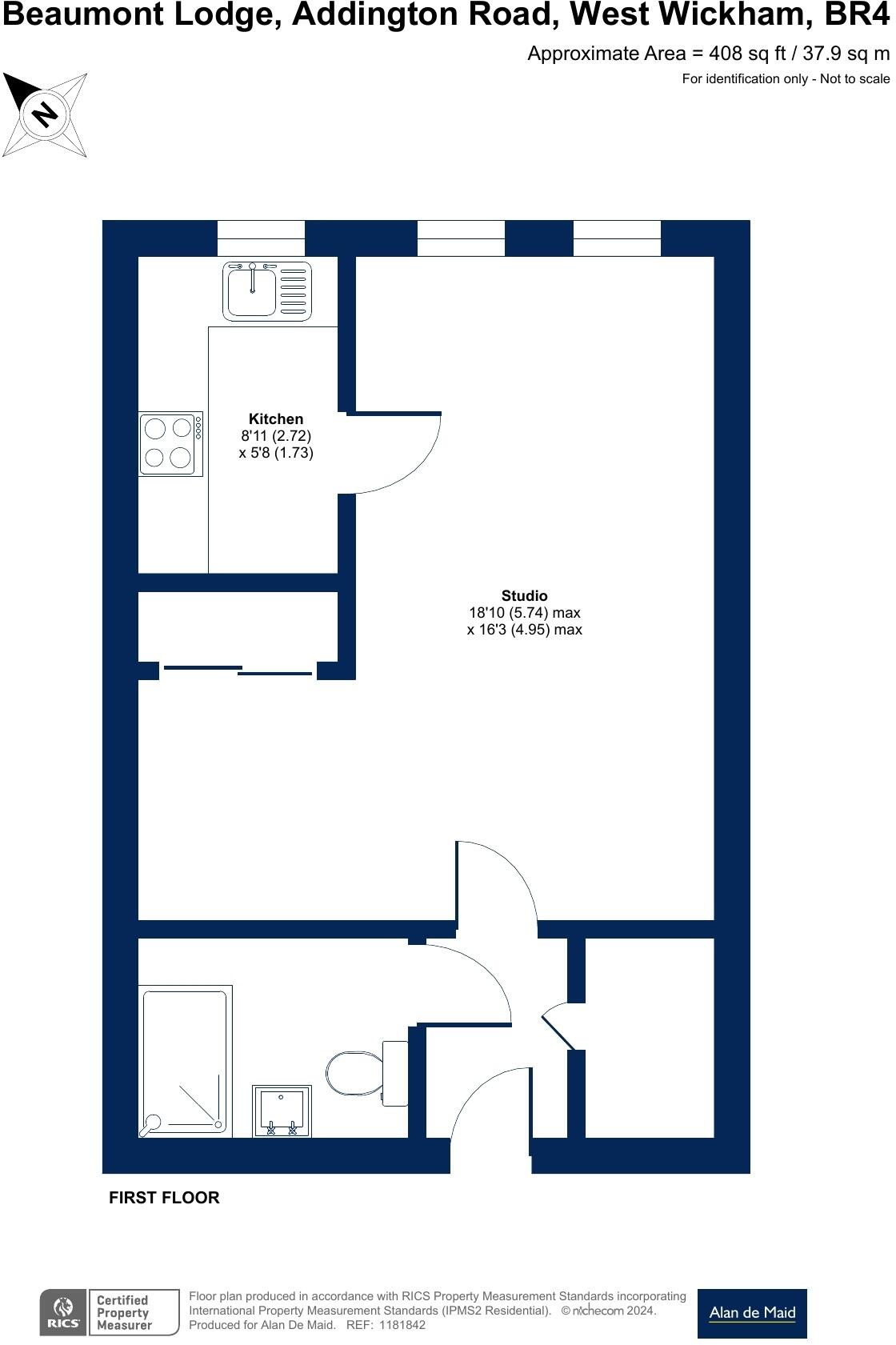
Chain-free first-floor retirement studio, approx. 408 sq ft
A compact, chain-free retirement studio on the first floor of Beaumont Lodge, offering easy, low-maintenance living close to West Wickham and Hayes High Streets. The open living/bedroom space includes built-in wardrobes and a separate fitted kitchen, arranged for straightforward day-to-day use.

Residents benefit from communal facilities including a lounge, laundry, gardens, parking and a guest suite — useful for visitors or social activities. The development sits in a very affluent, low-crime neighbourhood with good bus links, nearby shops and local amenities within walking distance.

Practical points to note: the flat is small (about 408 sq ft) and heated via electric storage heaters. Flooding risk in the area is rated medium and the property’s tenure is not stated, which may affect purchase finance and future service arrangements. Overall this is a sensible, low-upkeep option for a retiree seeking convenience and community, though buyers should confirm tenure and consider the heating and flood risk before committing.

Property Details

Brochure Descriptions

Image Descriptions

Floorplan Description

Rooms

Textual Property Features

Target Audience

AI Tags

Detected Visual Features

EPC Details

Nearby Schools

Nearest Bars And Restaurants

,,,,}

Nearest General Shops

,,}

Nearest Grocery shops

,,}

Nearest Supermarkets

,,}

Nearest Religious buildings

,,}

Nearest Medical buildings

,,,}

Nearest Airports

,,}

Nearest Leisure Facilities

,,,,}

Nearest Tourist attractions

,,}

Nearest Train stations

,,,,}

Nearest Bus stations and stops

,,,,}

Nearest Hotels

,,}

Tags

Local Market Stats

Similar Properties

Meta

High Res Images

Compatible Images

Low res Images

Thumbnails

Raw Images

High Res Floorplan Images

Compatible Floorplan Images

Low res Floorplan Images

FloorplanImages Thumbnail

Raw Floorplan Images