Large plot, garage and approved plans for extra living space — ideal for growing families.
Central Oxton Village location, five-minute walk to shops and bars
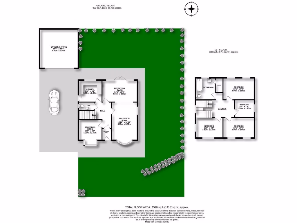
Set on a larger-than-expected plot in central Oxton Village, this four-bedroom detached home blends mid‑century charm with clear potential. The ground floor offers a through living and dining room, separate kitchen, study/TV room and cloakroom, while upstairs provides four bedrooms and a large bathroom with a sauna — an unusual feature for the area. A very large detached garage and wide gardens give scope for family life and outdoor living.
Planning permission (APPH/23/01793) was approved on 26/02/2024 for a ground-floor wrap‑around extension, so there is immediate scope to enlarge and reconfigure the living space. Practical comforts include double glazing, gas central heating, an EV charging point and fast broadband — useful for working from home or family tech needs. Shops, pubs and good schools are all within a short walk, and public transport links are close by.
Buyers should note this is a 1960s/70s build with cavity walls assumed to have no cavity insulation; upgrading insulation would improve comfort and running costs. The property has only one main bathroom, which may be restrictive for larger families without further alterations. Council tax is above average. Overall, this property suits families seeking a spacious plot in a highly convenient village location with permitted development ready to be implemented.
4 bedroom semi-detached house for sale in Palm Hill, Oxton, Wirral, CH43 — £490,000 • 4 bed • 2 bath • 1890 ft²
4 bedroom detached house for sale in Claughton Green, Prenton, Wirral, CH43 — £450,000 • 4 bed • 1 bath • 1306 ft²
4 bedroom detached house for sale in Grosvenor Place, Prenton, CH43 — £450,000 • 4 bed • 1 bath • 1386 ft²
4 bedroom detached house for sale in Palm Grove, Oxton, CH43 — £650,000 • 4 bed • 2 bath • 1999 ft²
4 bedroom detached house for sale in Ince Grove, Oxton, Wirral, CH43 — £450,000 • 4 bed • 2 bath • 1270 ft²
4 bedroom detached house for sale in Grosvenor Road, Oxton, CH43 — £575,000 • 4 bed • 2 bath • 2566 ft²






































































































