SS15 4JP - 3 bed cottage in gated mews in Fore Street, SS15 4JP

View on Property Piper

3 bedroom detached house for sale in Video Presentation Inside - Fore Street, Noak Bridge, Basildon, Essex, SS15

Summary - 31 FORE STREET BASILDON SS15 4JP

3 bed 2 bath Detached

Extended three-bedroom property with large garden and home office near primary school.
- Three-bedroom detached cottage-style home in gated mews
- Ground-floor extension provides flexible reception space
- 52ft rear garden with side access, good for families
- Off-street parking for up to three cars
- Half of detached garage converted to home office
- Compact overall internal area (c. 528 sq ft) for three beds
- One bedroom notably small; check measurements in person
- Freehold, double glazing, mains gas heating, low flood risk
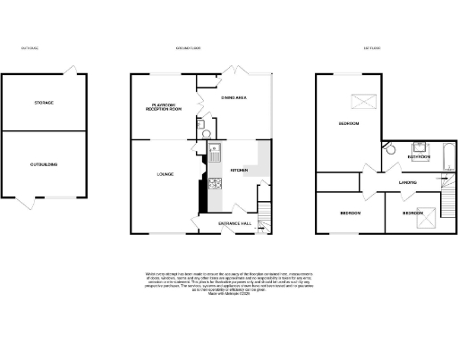
Set within an exclusive gated mews in Noak Bridge, this three-bedroom detached cottage-style house blends character features with practical family living. The ground-floor extension creates a flexible reception layout including a lounge with exposed timbers and an inglenook-style fireplace, a separate playroom, dining area and a well-equipped kitchen. A downstairs WC adds convenience for busy households.

Externally the plot is a notable asset: a 52ft rear garden with side access provides good outdoor space for children and entertaining, while off-street parking for up to three cars meets everyday family needs. Half of the detached garage has been converted to a dedicated home office, useful for remote working, with the remainder retained for storage.

Important practical points are clear and factual. The advertised internal area is small for a three-bedroom home (c. 528 sq ft) and one upstairs bedroom measures notably compact—buyers should review room sizes in person. The garage conversion reduces secure vehicle storage. The property is freehold, double-glazed, gas‑heated via boiler and radiators, with low flood risk and moderate council tax.

For families seeking a characterful, village-feel location close to Noak Bridge Primary School (0.3 miles) and nearby countryside walks, this property offers a rare combination of charm, garden space and flexible accommodation. Buyers wanting larger internal living areas should factor the modest total floor area into their decision.

Property Details

Brochure Descriptions

Image Descriptions

Rooms

Textual Property Features

Target Audience

AI Tags

Detected Visual Features

EPC Details

Nearby Schools

Nearest Bars And Restaurants

,,,,}

Nearest General Shops

,,}

Nearest Grocery shops

,,}

Nearest Supermarkets

,,}

Nearest Religious buildings

,,}

Nearest Medical buildings

,,,}

Nearest Airports

,}

Nearest Leisure Facilities

,,,,}

Nearest Tourist attractions

,,}

Nearest Train stations

,,,,}

Nearest Bus stations and stops

,,,,}

Nearest Hotels

,,}

Tags

Local Market Stats

Similar Properties

Meta

High Res Images

Compatible Images

Low res Images

Thumbnails

Raw Images

High Res Floorplan Images

Compatible Floorplan Images

Low res Floorplan Images

FloorplanImages Thumbnail

Raw Floorplan Images