Chain-free two-bedroom terrace with a generous garden and scope to add value.
Chain-free two-bedroom terraced period house with high ceilings
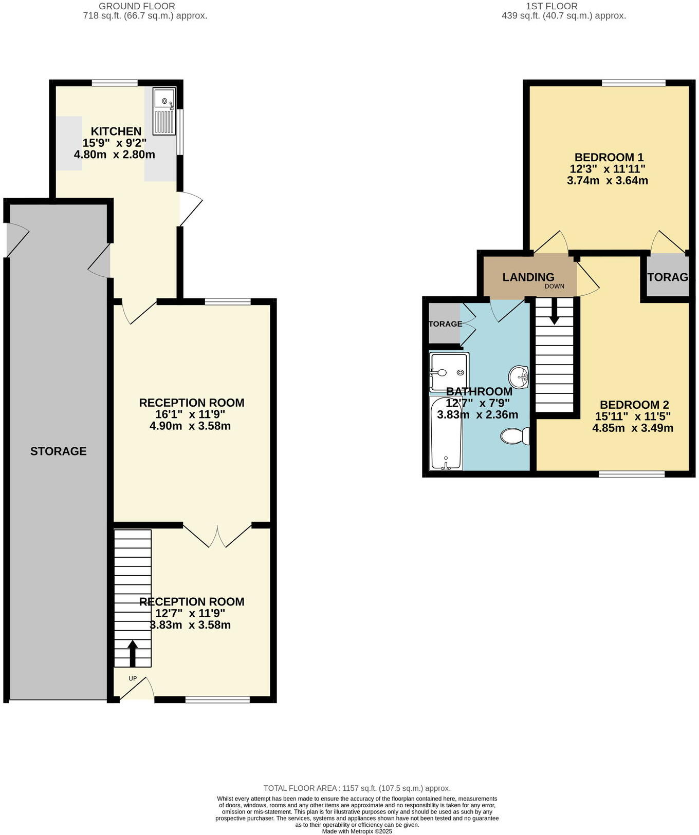
Tucked away on a quiet street in central Halesowen, this two-bedroom period terraced house is offered chain free and ready for a buyer who wants to add value. The layout includes two reception rooms, a kitchen to the rear and a large upstairs bathroom with separate bath and shower. A substantial storage area is accessible from the front and internally, useful for bikes, tools or conversion (subject to consents).
The rear garden is pleasant and private with patio and lawn, providing a good outdoor space for families or first-time buyers. The property sits within walking distance of local shops, Hawne Park and well-regarded primary and secondary schools, and benefits from very low local crime, fast broadband and excellent mobile signal.
The house requires modernisation throughout: cosmetic updating, likely insulation improvements to solid brick walls, and general refurbishment are needed. Parking is on-street only. Despite these works, the property’s size, period features (high ceilings) and freehold status offer clear scope to improve and increase value for owner-occupiers or first-time purchasers.
Practical details: built c.1930–49, mains gas central heating with boiler and radiators, double glazing (installation date unknown), no flood risk and very low council tax. Buyers should budget for renovation works and possible insulation upgrades to solid walls.
2 bedroom terraced house for sale in Cobham Road, Halesowen, B63 — £230,000 • 2 bed • 1 bath • 884 ft²
2 bedroom end of terrace house for sale in HALESOWEN, Overend Road, B63 — £179,950 • 2 bed • 1 bath • 781 ft²
3 bedroom terraced house for sale in Banners Street, Halesowen, B63 — £200,000 • 3 bed • 1 bath • 836 ft²
3 bedroom semi-detached house for sale in Red Leasowes Road, Halesowen, B63 — £235,000 • 3 bed • 1 bath • 776 ft²
3 bedroom semi-detached house for sale in HALESOWEN, Brier Mill Road, B63 — £270,000 • 3 bed • 1 bath • 1031 ft²
2 bedroom terraced house for sale in Hammersley Close, HALESOWEN, West Midlands, B63 — £180,000 • 2 bed • 1 bath • 588 ft²










































































