Chain-free two-bed with garden and cellar, ready for modernisation.
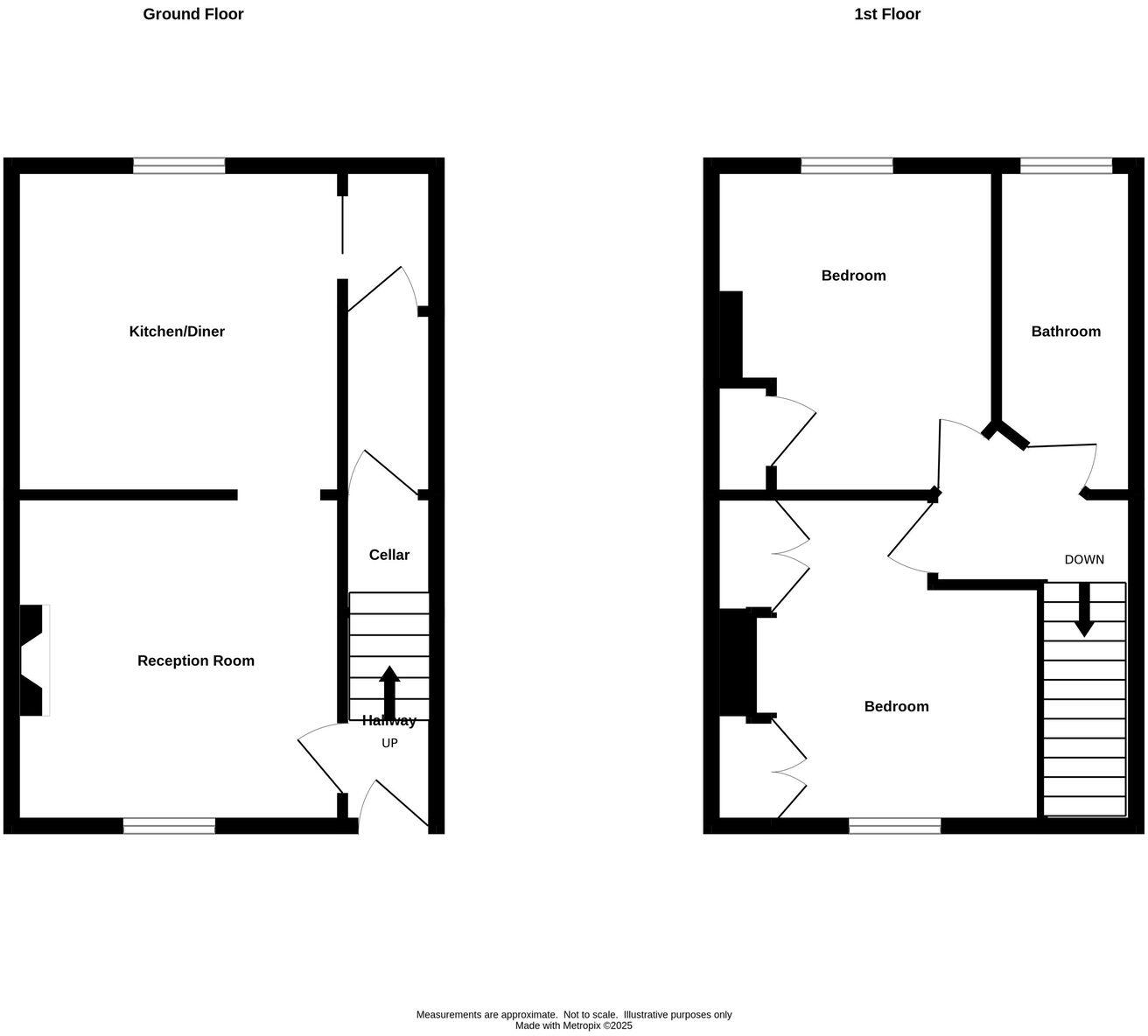
Two double bedrooms, main bathroom on first floor
This traditional two-bedroom end-of-terrace on Overend Road is a straightforward, chain-free purchase ideal for first-time buyers, downsizers or buy-to-let investors. The layout is sensible: entrance hall, medium living room, rear kitchen with dining space, cellar for storage and two double bedrooms upstairs served by a single family bathroom.
Practical benefits include double glazing, mains gas central heating, freehold tenure and very low council tax (Band A). The large plot and rear garden offer scope to extend (subject to planning) or add off-street parking/garage, while fast broadband and excellent mobile signal suit home working or tenants.
Buyers should note the property is an interwar-style solid-brick build (circa 1950–66) with no confirmed wall insulation and an EPC rating of D. The exterior shows dated brickwork and some repair/maintenance will be needed to modernise finishes and improve energy efficiency. The home is sold chain free, giving a quicker completion for confident purchasers.
Local amenities, primary and secondary schools rated Good to Outstanding, and convenient transport links make this a practical choice for families or landlords seeking reliable rental demand. With sensible updating, the house offers clear potential to add value and reduce running costs.
1 bedroom end of terrace house for sale in HALESOWEN, Attwood Street, B63 — £150,000 • 1 bed • 1 bath • 517 ft²
2 bedroom end of terrace house for sale in Intended Street, HALESOWEN, B63 — £185,000 • 2 bed • 1 bath • 732 ft²
2 bedroom end of terrace house for sale in HALESOWEN, Richmond Street, B63 — £220,000 • 2 bed • 1 bath • 625 ft²
3 bedroom terraced house for sale in Banners Street, Halesowen, B63 — £200,000 • 3 bed • 1 bath • 836 ft²
2 bedroom terraced house for sale in Hammersley Close, HALESOWEN, West Midlands, B63 — £190,000 • 2 bed • 1 bath • 588 ft²
2 bedroom end of terrace house for sale in HALESOWEN, New England, B62 — £175,000 • 2 bed • 1 bath • 743 ft²






































