One-bedroom Cambridge flat close to station — low charges, long lease, ideal for first-time buyers or investors..
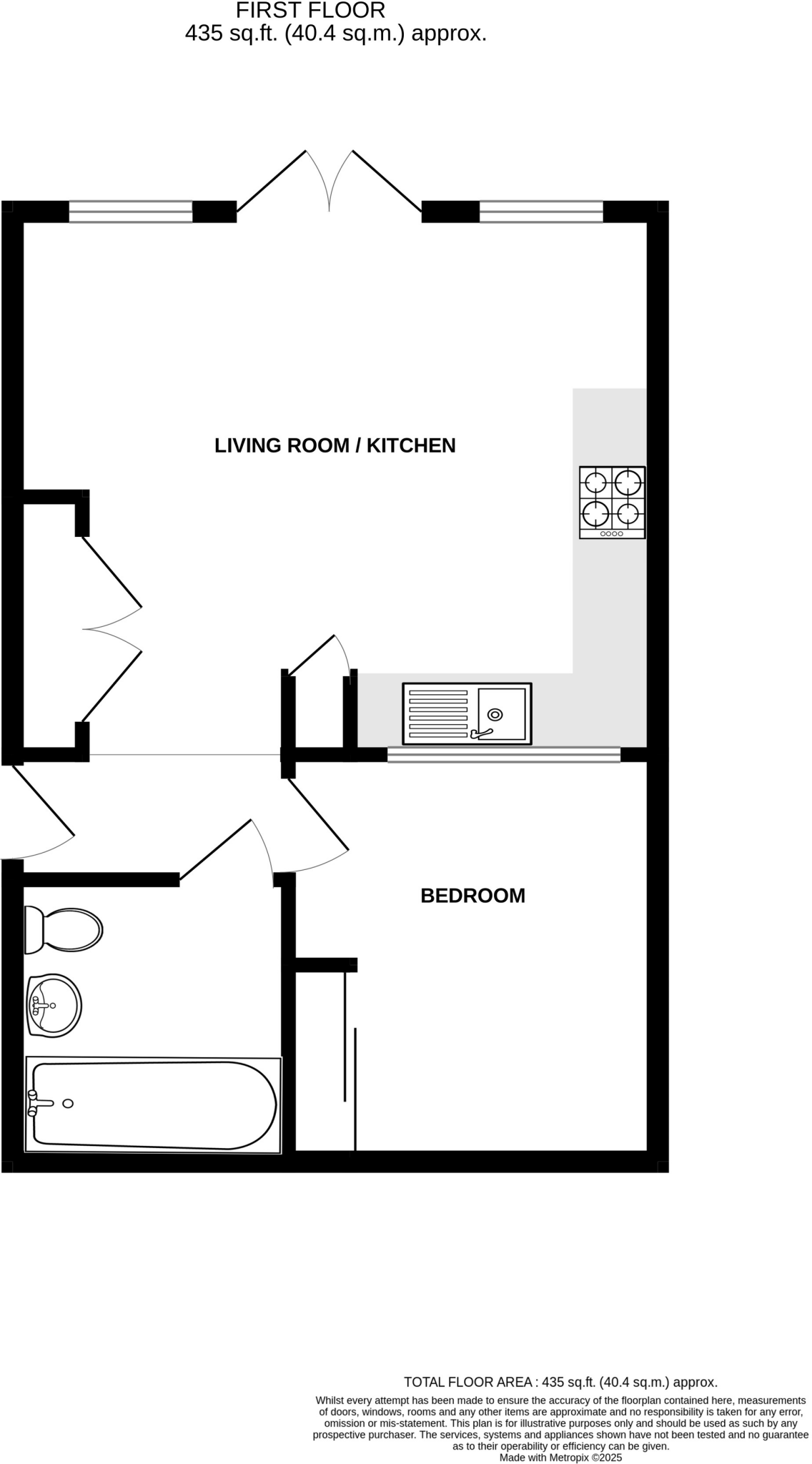
One-bedroom open-plan flat, approx 435 sq ft
This compact one-bedroom apartment in CB1 sits within a modern block on Stockwell Street, a short walk from the station and plentiful local amenities. The open-plan living/kitchen maximises space with integrated appliances and a Juliet balcony that brings in light. The property benefits from a long lease (134 years), nil ground rent and a low service charge of approximately £800 per year.
Practical details suit first-time buyers or buy-to-let investors: EPC band B, council tax band B, secure covered bike storage and an allocated garage for parking. The building's double glazing and relatively recent construction (post-2007) support lower maintenance, while the compact footprint (approximately 435 sq ft) keeps running costs manageable.
Buyers should note the apartment is small and uses electric room heaters rather than gas central heating, which can affect energy bills depending on usage. Broadband in the area is reported as very slow, and the layout includes modest storage despite fitted wardrobes. Overall, this is a low-maintenance, well-located city flat with good lease terms — recommended for viewing to assess space and heating needs in person.
1 bedroom flat for sale in Regatta Court, Oyster Row, Cambridge, CB5 — £170,000 • 1 bed • 1 bath • 374 ft²
1 bedroom flat for sale in Whichcote House, CB4 — £350,000 • 1 bed • 1 bath • 377 ft²
1 bedroom flat for sale in William Smith Close, Cambridge, CB1 — £300,000 • 1 bed • 1 bath • 414 ft²
1 bedroom apartment for sale in Rustat Avenue, Cambridge, CB1 — £295,000 • 1 bed • 1 bath • 520 ft²
Studio flat for sale in Mill Road, Cambridge, CB1 — £195,000 • 1 bed • 1 bath • 388 ft²
1 bedroom apartment for sale in Eagle Yard, 1 Great Eastern Street, Cambridge, CB1 — £365,000 • 1 bed • 1 bath • 542 ft²


































