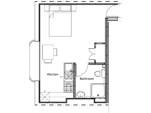
**Standout Features:**
- Compact 25m² (approx. 388 sq. ft.) open-plan studio
- Modern kitchen and bathroom fittings
- Electric heating and double glazing
- Excellent location near railway station and ARU
- Leasehold tenure with 115 years remaining
**Potential Downsides:**
- Small overall size (suitable for single occupancy)
- High service charge of £1,440 per annum
- High crime rate in the area
This modern studio apartment offers an ideal investment opportunity or a comfortable living space for first-time buyers. Located in a vibrant cosmopolitan neighborhood, it features an open-plan design, contemporary kitchen, and well-appointed shower room. With electric heating and double-glazed windows, it’s a cozy haven close to key amenities, including shops, restaurants, and excellent transport links.
While the property’s small size may limit its appeal for families, it is perfect for students or professionals seeking a convenient city-center residence. The high service charge and surrounding crime rates are essential considerations but are balanced by the property's modern condition and future rental potential. Don't miss this chance to secure a compact, stylish living option that places you right in the heart of the city!
Studio flat for sale in Mill Road, Cambridge, CB1 — £185,000 • 1 bed • 1 bath • 668 ft²
Studio flat for sale in Mawson Road, Cambridge, CB1 — £175,000 • 1 bed • 1 bath
Studio flat for sale in Mallory House, East Road, Cambridge, CB1 — £170,000 • 1 bed • 1 bath • 1804 ft²
Studio flat for sale in East Road, Cambridge, Cambridgeshire, CB1 — £140,000 • 1 bed • 1 bath • 2840 ft²
Studio flat for sale in Ruth Bagnall Court, Cambridge, CB1 — £190,000 • 1 bed • 1 bath • 388 ft²
Studio flat for sale in Speedwell Close, Cambridge, CB1 — £150,000 • 1 bed • 1 bath • 344 ft²


























