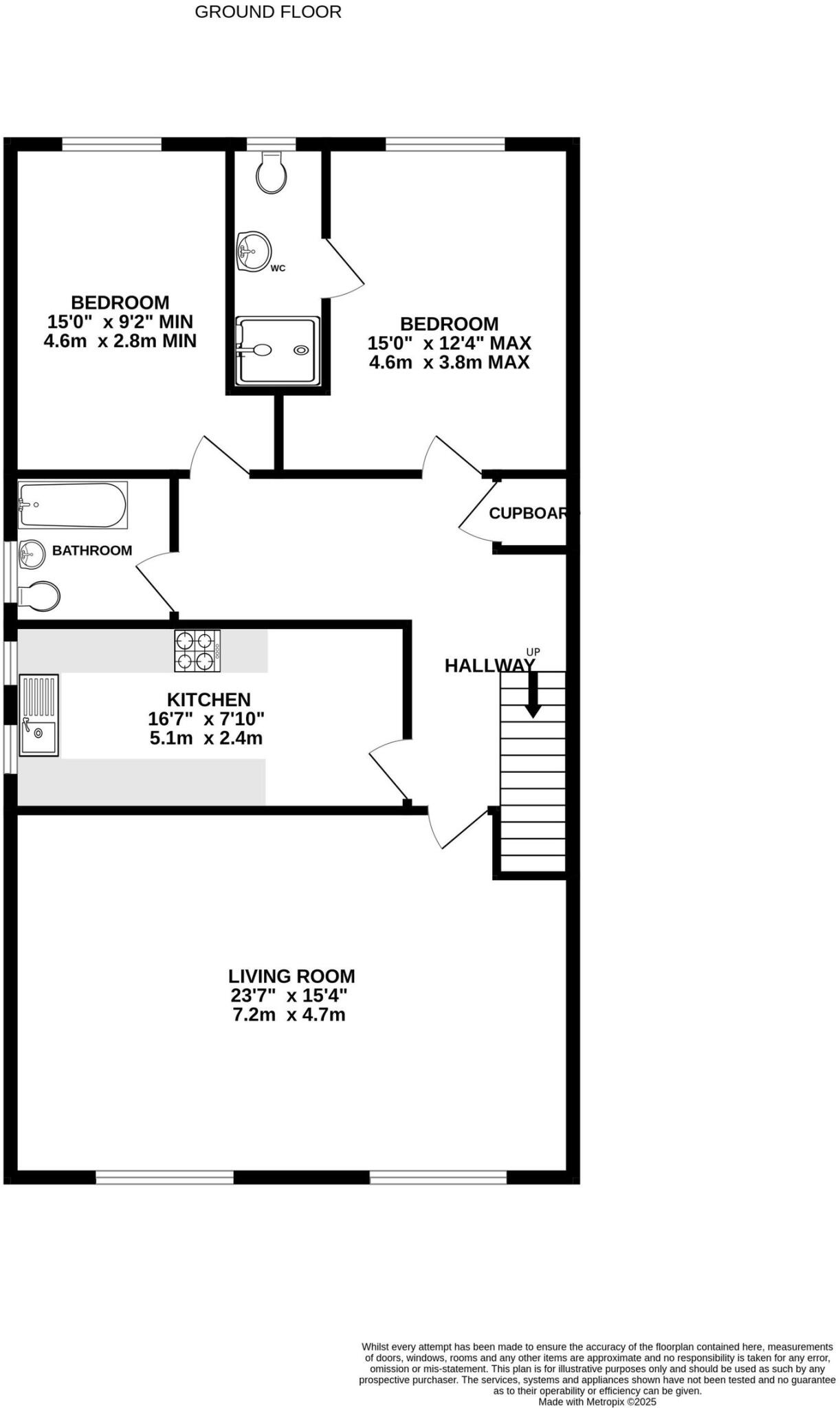
**Standout Features:**
- Spacious first-floor apartment in a well-regarded Tudor Revival building
- Expansive 23ft light-filled lounge/diner perfect for entertaining
- Generous kitchen with breakfast nook and included appliances
- Two double bedrooms, including an ensuite WC in the master
- Extensive loft space offering excellent storage or conversion potential
- Private garage plus additional communal parking
- Quiet shared gardens with well-maintained communal areas
- No onward chain for a hassle-free move
- Located on a desirable, tree-lined street near the coast
Tucked away on one of Minehead’s most prestigious roads, this exceptionally spacious first-floor apartment combines comfort and ease with ample potential for personalization. With a generous 23ft lounge/diner bathed in natural light, it provides the perfect environment for both relaxation and entertaining. The well-equipped kitchen invites casual dining, enhanced by included appliances. Two well-proportioned double bedrooms offer versatility, while the master features an ensuite for added convenience.
For those who prioritize storage, the property boasts a large hallway cupboard and a loft that could be converted into a home office or additional living space (subject to planning approval). Residents can also enjoy a private garage and communal parking, set amidst serene shared gardens.
Positioned just a short stroll from Minehead's vibrant town centre and beautiful coastal walks, this apartment is ideally suited for families, retirees, or first-time buyers seeking a peaceful lifestyle without compromising on space or convenience. With a 999-year lease and no onward chain, this inviting home is ready for its next chapter—don’t miss the chance to make it your own!
3 bedroom apartment for sale in Blenheim Road, Minehead, TA24 — £240,000 • 3 bed • 2 bath • 958 ft²
2 bedroom flat for sale in Clanville, Clanville Road, Minehead, TA24 — £165,000 • 2 bed • 1 bath • 749 ft²
2 bedroom flat for sale in Alexandra Gardens, Minehead, TA24 — £160,000 • 2 bed • 1 bath • 659 ft²
3 bedroom apartment for sale in 2 The Esplanade, Minehead, Somerset, TA24 — £235,000 • 3 bed • 1 bath • 1131 ft²
2 bedroom apartment for sale in Bernard Crescent, Minehead, Somerset, TA24 — £129,950 • 2 bed • 1 bath • 606 ft²
2 bedroom apartment for sale in Irnham Road, Minehead, Somerset, TA24 — £179,950 • 2 bed • 1 bath • 933 ft²






































































