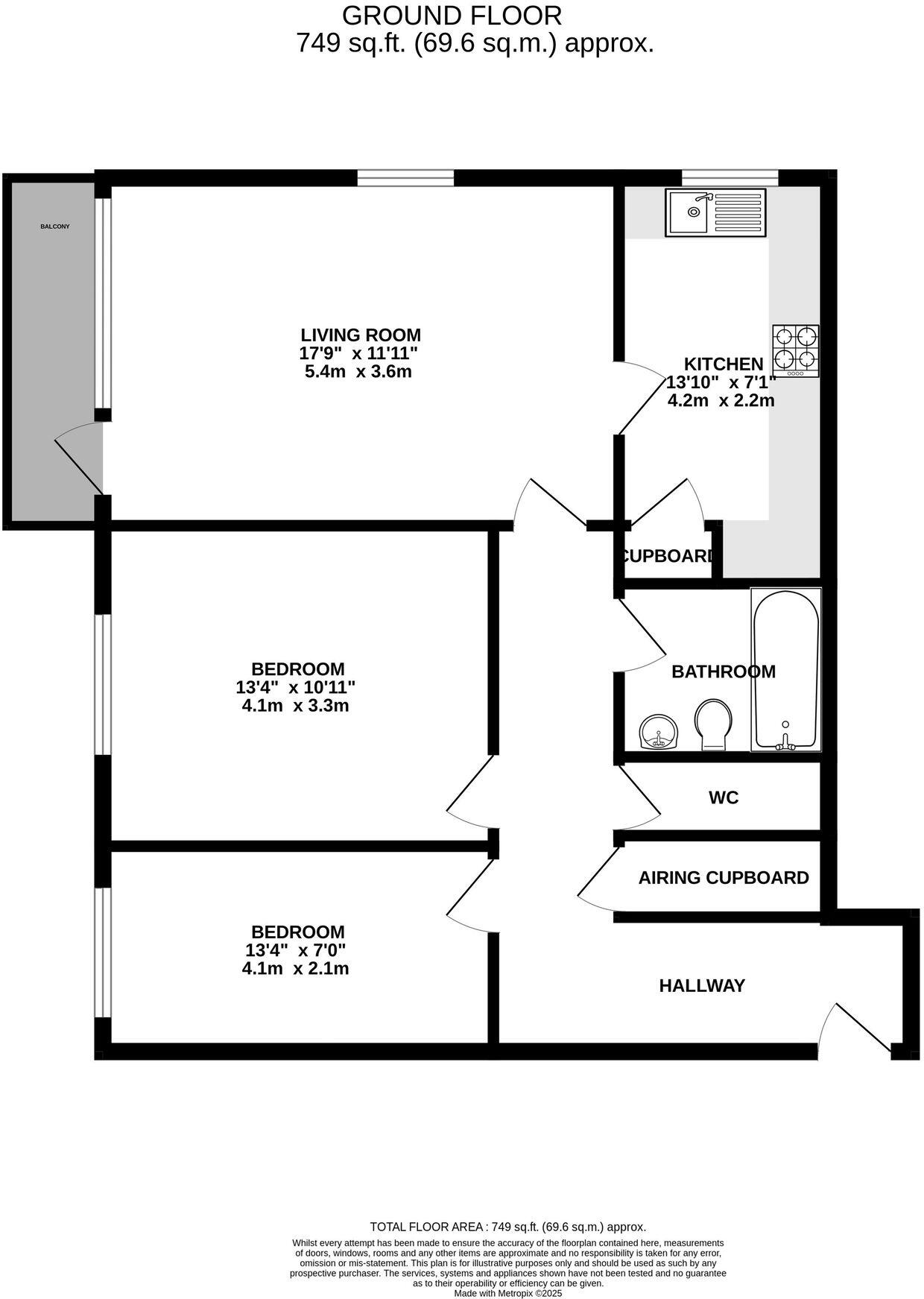
**Standout Features:**
- Stunning panoramic views of Minehead and the sea
- Private balcony for outdoor enjoyment
- Spacious open-plan living/dining area
- Two generous double bedrooms
- Garage included—secure parking in a central location
- Lift access to all floors
- No onward chain; 944 years left on the lease
- Affordable council tax and monthly service charge
This impressive two-bedroom apartment in a sought-after location presents an excellent investment opportunity for both families and first-time buyers. Perched on an upper floor with lift access, it offers breathtaking views across Minehead to the sea, allowing you to savor your morning coffee on the private balcony. The open-plan living and dining area is bright and welcoming, complemented by a fitted kitchen and generous storage throughout.
Enhance the potential of this space with your personal touch or opt to keep it as is — the choice is yours! The property features a separate bathroom and WC, as well as an unusual bonus: a garage, ensuring secure parking or additional storage, rare for the area.
Situated in a peaceful yet central development with well-maintained communal areas, this apartment is ready to welcome new memories. With no onward chain and an attractive price point of just £165,000, this property offers comfort, security, and future potential. Don’t miss out on this exclusive opportunity in a vibrant community, explore the local amenities, and envision life in this beautiful retreat.







































































