Expansive period building with garage and parking, ideal for redevelopment investors..
Extremely large four-storey Victorian building with original period features
High ceilings, ornate cornicing and deep timber skirting throughout
Opportunity to convert to multiple dwellings, subject to planning permission
Large rear car park and double garage with conversion potential
Previously let to salon; tenant has recently ceased trading — verify lease
Gas central heating, security alarm and off-street parking present
Located in Pontcanna, half-mile west of Cardiff city centre
Area records high crime and very high deprivation — consider market risk
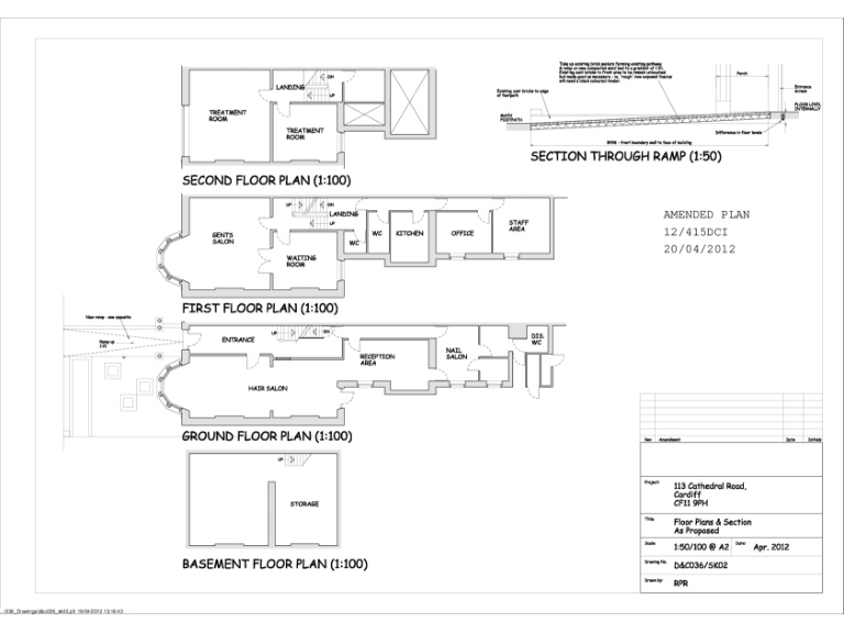
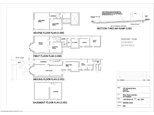
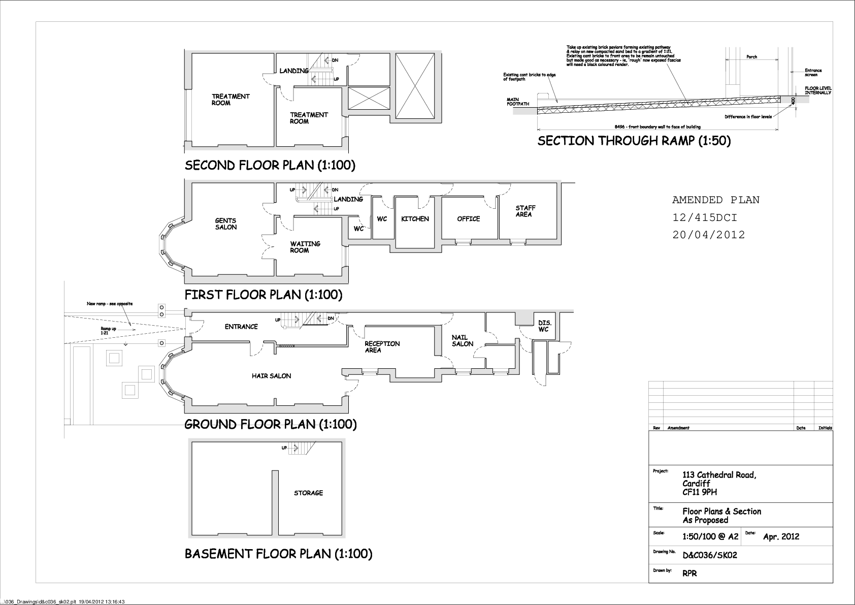
Set on sought-after Cathedral Road in Pontcanna, this substantial Victorian semi-detached building offers clear development potential for an investor or developer. The property retains strong period character — high ceilings, ornate cornicing, deep timber skirting and large bay windows — that would appeal to buyers seeking attractive residential units with historic detail.
The building spans four storeys including a basement and currently has commercial fit-out elements (salon layout, male/female WCs, kitchen, shower). There is a large rear car park and a double garage with scope for conversion to residential space, subject to planning. Access to Cardiff city centre, local amenities and good road links adds to rental or resale appeal.
Practical positives include gas central heating, a security alarm and off-street parking. However, conversion to traditional homes or multiple dwellings requires planning consent and likely refurbishment to modern residential standards. The property previously had a lease to a salon operator who has recently ceased trading; buyers should verify lease status and occupation before purchase.
Notable drawbacks: the area records higher crime levels and significant deprivation, which can affect rental demand and resale values in parts of the market. Interested buyers should factor in refurbishment costs, planning timeframes and potential compliance upgrades (fire, accessibility, services) when assessing total project viability.
4 bedroom town house for sale in Cathedral Road, Pontcanna, Cardiff, CF11 — £900,000 • 4 bed • 2 bath • 2521 ft²
5 bedroom semi-detached house for sale in Cathedral Road, Cardiff, CF11 — £1,195,000 • 5 bed • 5 bath • 4488 ft²
6 bedroom house for sale in Cathedral Road, Pontcanna, Cardiff, CF11 — £1,200,000 • 6 bed • 3 bath • 3317 ft²
5 bedroom terraced house for sale in Plasturton Gardens, Pontcanna, Cardiff, CF11 — £975,000 • 5 bed • 2 bath • 2873 ft²
1 bedroom apartment for sale in Cathedral Road, Pontcanna, Cardiff, CF11 — £250,000 • 1 bed • 1 bath • 463 ft²
6 bedroom semi-detached house for sale in Newport Road, Cardiff, South Glamorgan, CF24 — £520,000 • 6 bed • 1 bath • 2300 ft²


































