Well-presented three-bedroom home close to Bath and Bristol for commuting families.
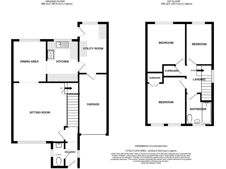
Three bedrooms with a light, spacious sitting/dining area
Modern kitchen, separate utility room and ground-floor cloakroom
Attached single garage plus block-paved driveway for multiple cars
Enclosed, tiered rear garden — private but modest in size
Built 1967–75; cavity walls assumed uninsulated (may need upgrade)
Within a coal-mining reporting area — may affect surveys/insurance
Single family bathroom only; limited scope for additional bathrooms
Excellent mobile signal; average broadband and council tax band C
This tidy three-bedroom semi-detached house in a quiet Farmborough cul-de-sac suits families seeking straightforward, comfortable living with easy access to Bath and Bristol. The accommodation is bright and practical: a large sitting room opening to a dining area, a modern kitchen plus a generous utility room, and a ground-floor cloakroom for everyday convenience. An attached garage and block-paved driveway give reliable off-street parking.
Upstairs are three well-proportioned bedrooms and a modern family bathroom. The enclosed rear garden is terraced and low-maintenance, offering private outdoor space for children and small-scale gardening. Built in the late 1960s/early 1970s, the home has contemporary fittings throughout and double glazing, creating a roomy, light-filled feel across about 1,012 sq ft.
Buyers should note some practical considerations: the cavity walls were constructed without added insulation (assumed), and the house sits within a coal-mining reporting area, which may affect surveys or insurance. The plot is modest in size and there is a single family bathroom, so buyers wanting larger gardens or additional bathrooms may need to adapt the layout. Broadband speeds are average, while mobile signal is excellent, and council tax is band C.
Overall this property offers a comfortable, well-presented family home in a very affluent village setting, close to good primary schools and local amenities. It will particularly suit commuters who value straightforward maintenance, convenient parking and easy transport links to nearby cities.
4 bedroom detached house for sale in Brookside Drive, Farmborough, Bath, BA2 — £500,000 • 4 bed • 2 bath • 1313 ft²
4 bedroom semi-detached house for sale in Bellifants, Farmborough, Bath, Somerset, BA2 — £325,000 • 4 bed • 2 bath • 1324 ft²
3 bedroom detached house for sale in Old Lane, Farmborough, Bath, BA2 — £425,000 • 3 bed • 1 bath • 1252 ft²
3 bedroom end of terrace house for sale in Tilley Close, Farmborough, BA2 — £325,000 • 3 bed • 1 bath • 1164 ft²
3 bedroom end of terrace house for sale in Bath Road, Farmborough, Bath, BA2 — £345,000 • 3 bed • 2 bath • 1023 ft²
3 bedroom semi-detached house for sale in High Street, Bathford, Bath, BA1 — £525,000 • 3 bed • 1 bath • 1441 ft²


















































