SW20 0SY - 4 bedroom detached house for sale in Cottenham Park Road, W…

View on Property Piper

4 bedroom detached house for sale in Cottenham Park Road, West Wimbledon, SW20

Summary - 201 COTTENHAM PARK ROAD LONDON SW20 0SY

4 bed 1 bath Detached

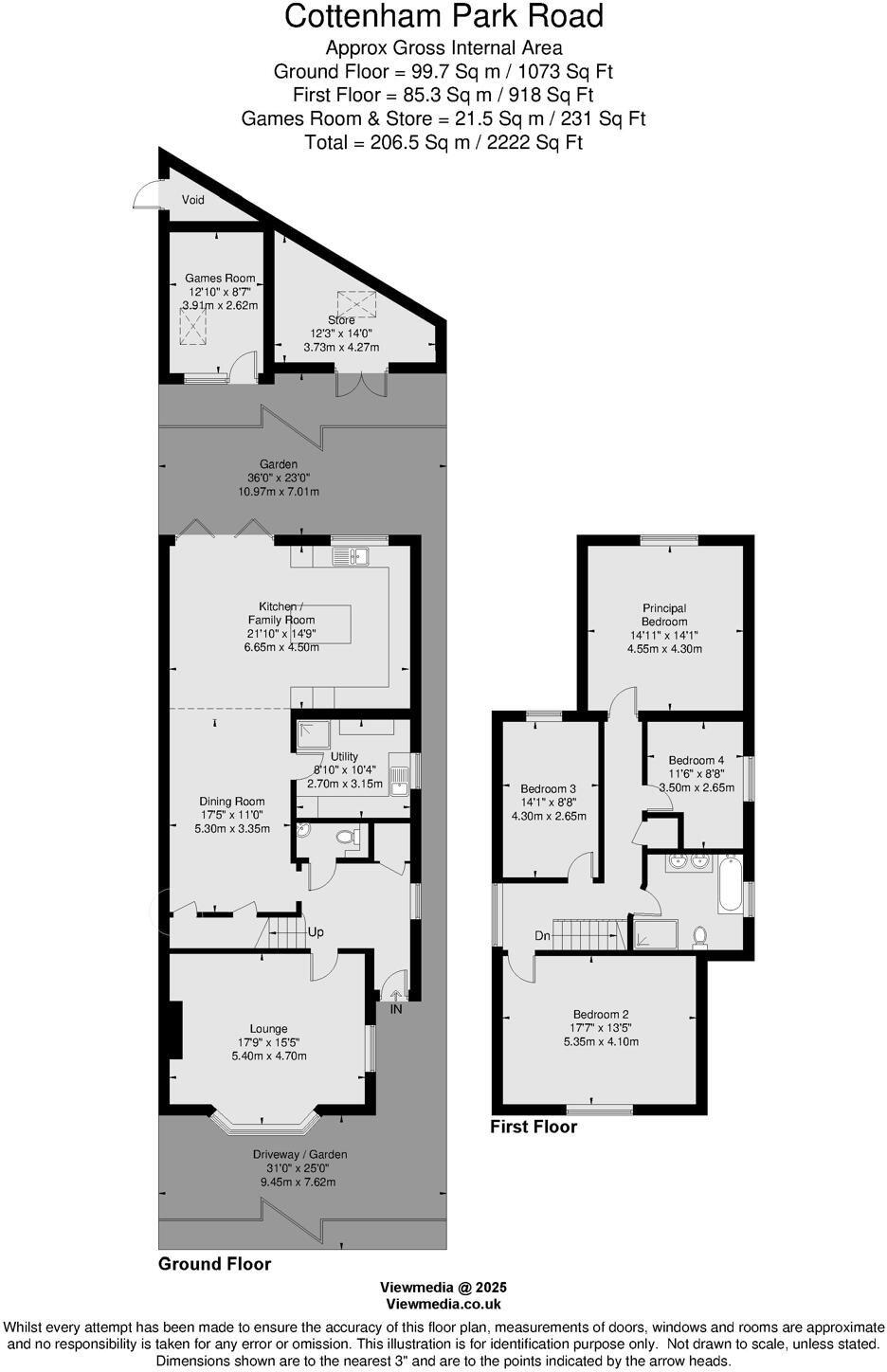
Four double bedrooms across two storeys, approx. 2,222 sq.ft total
This spacious four-bedroom family house (approx. 2,222 sq.ft) pairs period character with a contemporary extended layout, offering generous living space for modern family life. The ground floor flows from a front reception with wood-burning stove through to a large open-plan kitchen/diner/family room with bi-fold doors onto a south-facing garden and a versatile garden room/store — ideal for a home office, playroom or games space.

The house has been newly renovated and benefits from double glazing, gas central heating, bespoke storage and quality finishes throughout. Off-street parking and easy access to Raynes Park station, local schools and green spaces make the location especially practical for commuter families who want both convenience and nearby leisure options like Wimbledon Common and Cottenham Park.

Notable practical points: the property currently has one main family bathroom for four bedrooms, council tax is described as quite expensive, and tenure details are not provided. The building dates from c.1930–49 and uses solid brick construction; older fabric may lack modern insulation in walls (assumed), so buyers wanting maximum energy efficiency might consider further retrofit work.

Overall this home will suit growing families seeking generous, ready-to-live-in accommodation in a very well-connected West Wimbledon location, while those prioritising low running costs or multiple bathrooms should factor in potential upgrades.

Property Details

Brochure Descriptions

Image Descriptions

Floorplan Description

Rooms

Textual Property Features

Detected Visual Features

EPC Details

Nearby Schools

Nearest Bars And Restaurants

,,,,}

Nearest General Shops

,,}

Nearest Grocery shops

,,}

Nearest Supermarkets

,,}

Nearest Religious buildings

,,}

Nearest Medical buildings

,,,}

Nearest Airports

,,}

Nearest Leisure Facilities

,,,,}

Nearest Tourist attractions

,,}

Nearest Train stations

,,,,}

Nearest Bus stations and stops

,,,,}

Nearest Hotels

,,}

Tags

Local Market Stats

AirBnB Data

Similar Properties

Meta

High Res Images

Compatible Images

Low res Images

Thumbnails

Raw Images

High Res Floorplan Images

Compatible Floorplan Images

Low res Floorplan Images

FloorplanImages Thumbnail

Raw Floorplan Images