Bright, practical home minutes from Forest Hill station and local shops.
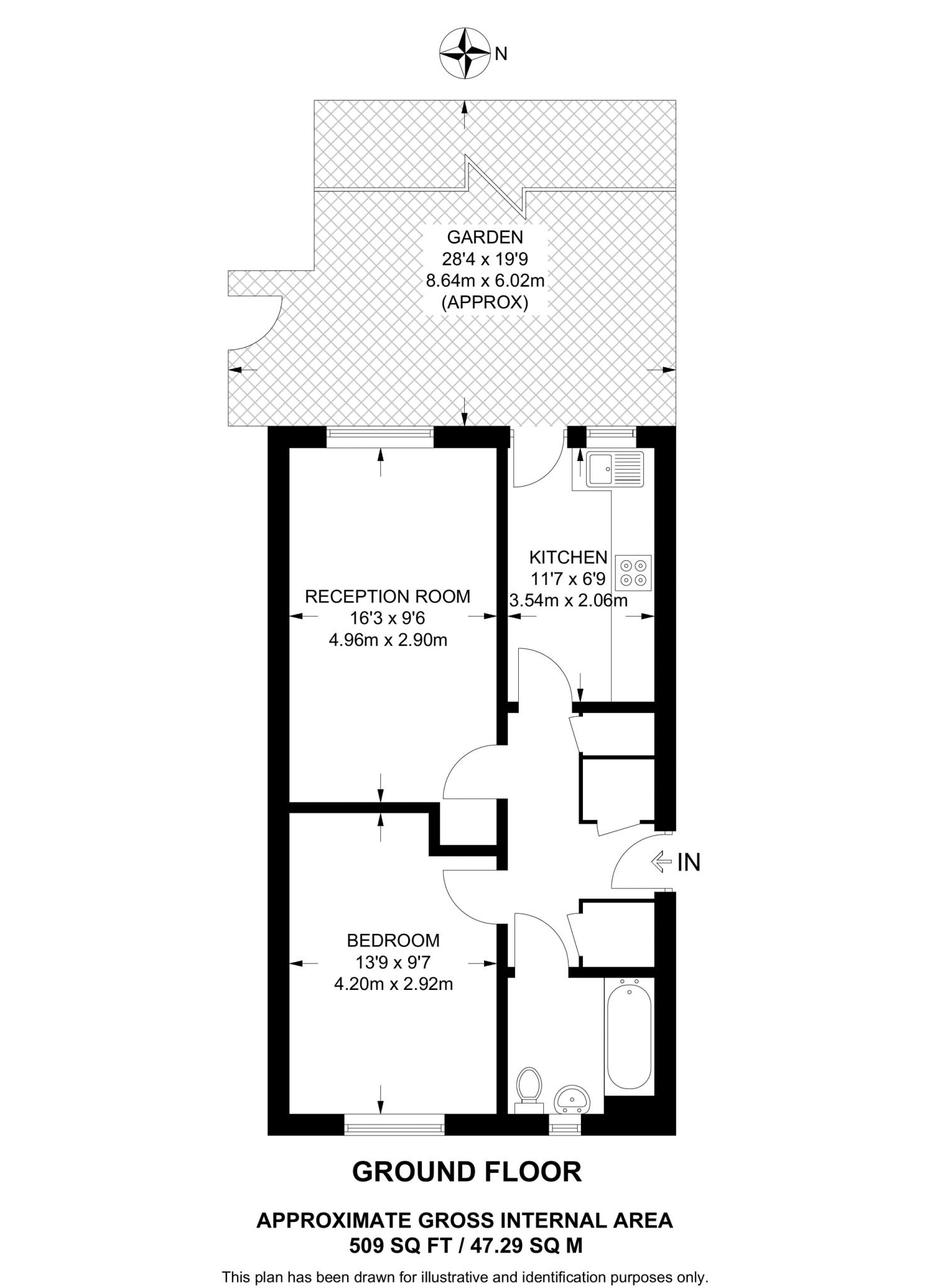
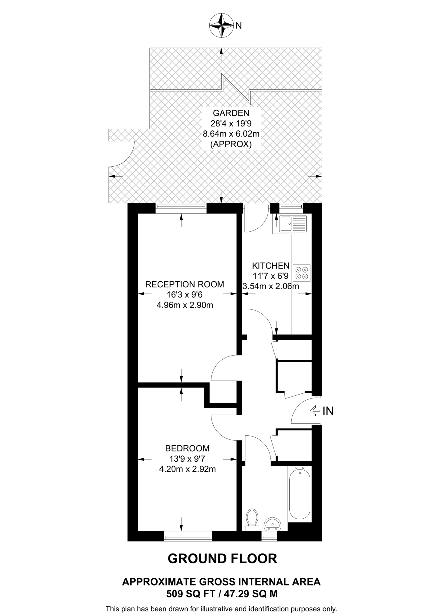
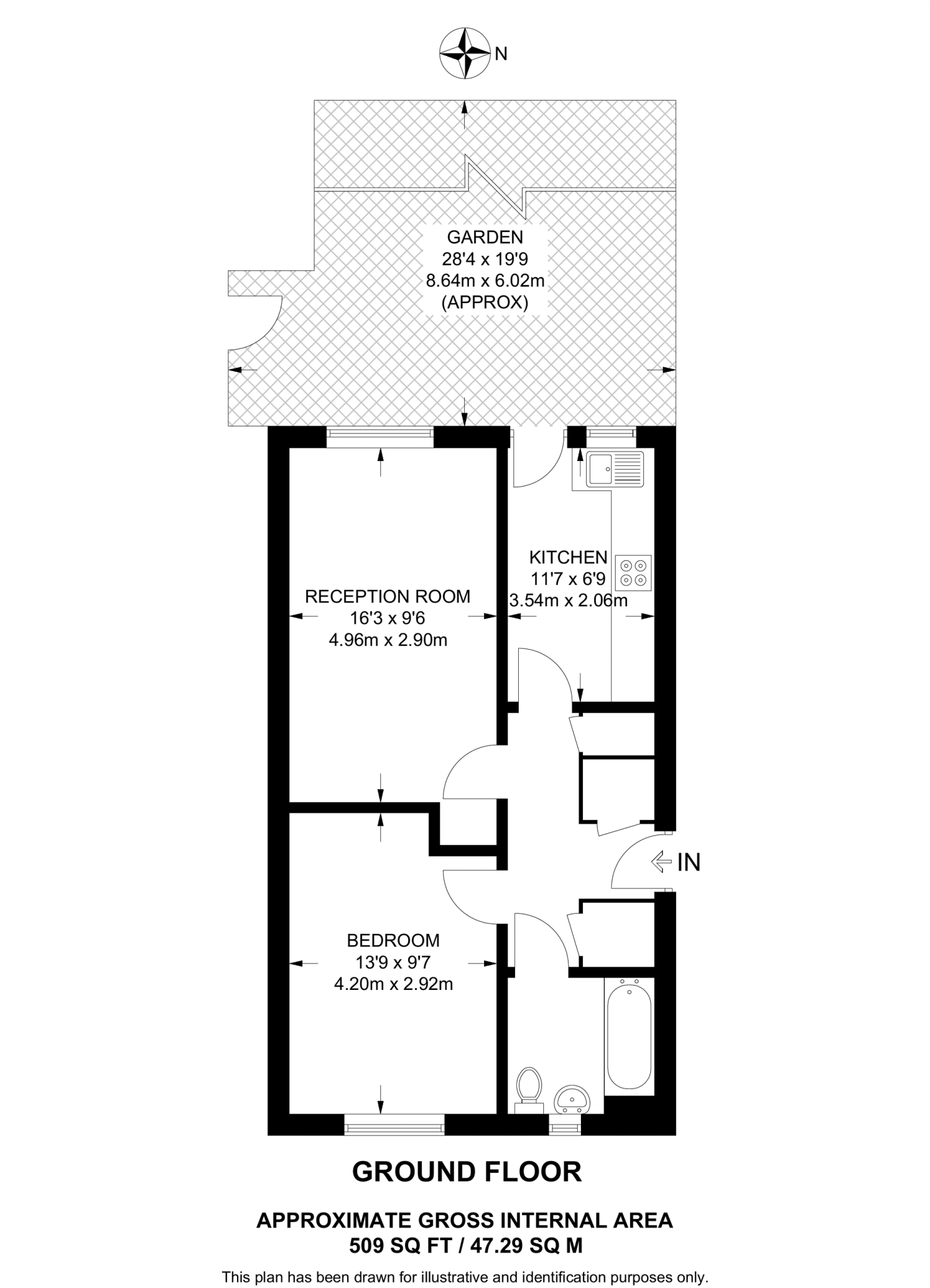
Ground-floor 1-bed flat with private garden
This ground-floor 1-bedroom flat offers a practical, well-lit layout ideal for a first-time buyer seeking outdoor space in Forest Hill. The large reception room and separate kitchen create clear living zones, while a private garden adds rare outside space for a property of this size. At about 509 sq ft the apartment feels comfortable without excess upkeep.
Transport and local amenities are strong draws: shops, restaurants and Forest Hill station are close by, and several ‘Good’ rated primary and secondary schools serve the area. Broadband and mobile signal are excellent, supporting remote working or streaming without drama.
Practical details are straightforward but important. The flat is leasehold with around 87 years remaining; service charges average £2,000 a year and ground rent is about £10. The building dates from 1996–2002 and appears modern in finish, but the lease length and service costs should be checked with a solicitor and mortgage lender before committing.
The neighbourhood is inner-city cosmopolitan with average crime and pockets of deprivation nearby. That said, the combination of a private garden, separate kitchen, and close transport links makes this a sensible entry-level purchase with potential to personalise and add value over time.
1 bedroom flat for sale in Forest Hill, Forest Hill, LONDON, SE23 — £450,000 • 1 bed • 1 bath • 605 ft²
1 bedroom flat for sale in Devonshire Road, Forest Hill, London, SE23 — £400,000 • 1 bed • 1 bath • 630 ft²
1 bedroom flat for sale in Park Rise, SE23 — £325,000 • 1 bed • 1 bath • 543 ft²
1 bedroom flat for sale in Stanstead Road, Forest Hill, SE23 — £385,000 • 1 bed • 1 bath • 415 ft²
1 bedroom flat for sale in Waldenshaw Road, Forest Hill, London, SE23 — £400,000 • 1 bed • 1 bath • 801 ft²
1 bedroom flat for sale in Devonshire Road, Forest Hill, London, SE23 — £400,000 • 1 bed • 1 bath • 679 ft²






















































































































































































































