NR9 5JN - 3 bedroom barn conversion for sale in Fairway Barn, Field R…

View on Property Piper

3 bedroom barn conversion for sale in Fairway Barn, Field Road, Weston Longville, Norfolk, NR9

Summary - Fairway Barn, Field Road, Weston Longville NR9 5JN

3 bed 3 bath Barn Conversion

**Standout Features:**
- Recently renovated barn conversion with a newly thatched roof
- 3 spacious bedrooms, one with en-suite
- Open plan lounge, kitchen, and dining area for modern living
- Gorgeous, landscaped front and rear gardens
- Off-road parking with a private shingle driveway
- Excellent connection to Norwich, only 8 miles away
- Located in a tranquil rural area near local amenities

**Summary:**
Embrace the charm of countryside living with Fairway Barn, a beautifully converted barn located on the outskirts of Weston Longville. This stunning property marries rustic elegance with contemporary comfort, showcasing a newly thatched roof and original features such as exposed beams and charming brickwork. The generous three-bedroom layout includes a master suite with an en-suite, perfect for families or entertaining guests.

The heart of this home is the expansive open-plan living area that flows seamlessly into the kitchen and dining space, illuminated by large glass doors that invite nature inside. With enclosed gardens on both the front and back, you can enjoy outdoor entertaining or peaceful relaxation in your own slice of tranquility. Access to local amenities, including a renowned pub and recreational centers, adds to the appeal while ensuring that the vibrant city of Norwich—known for its rich history and array of shops—is just a short drive away.

Fairway Barn offers a unique opportunity for those seeking a character-rich home in an idyllic rural setting. Don't miss your chance to make it your own; properties like this are rare to come by!

Property Details

Brochure Descriptions

Image Descriptions

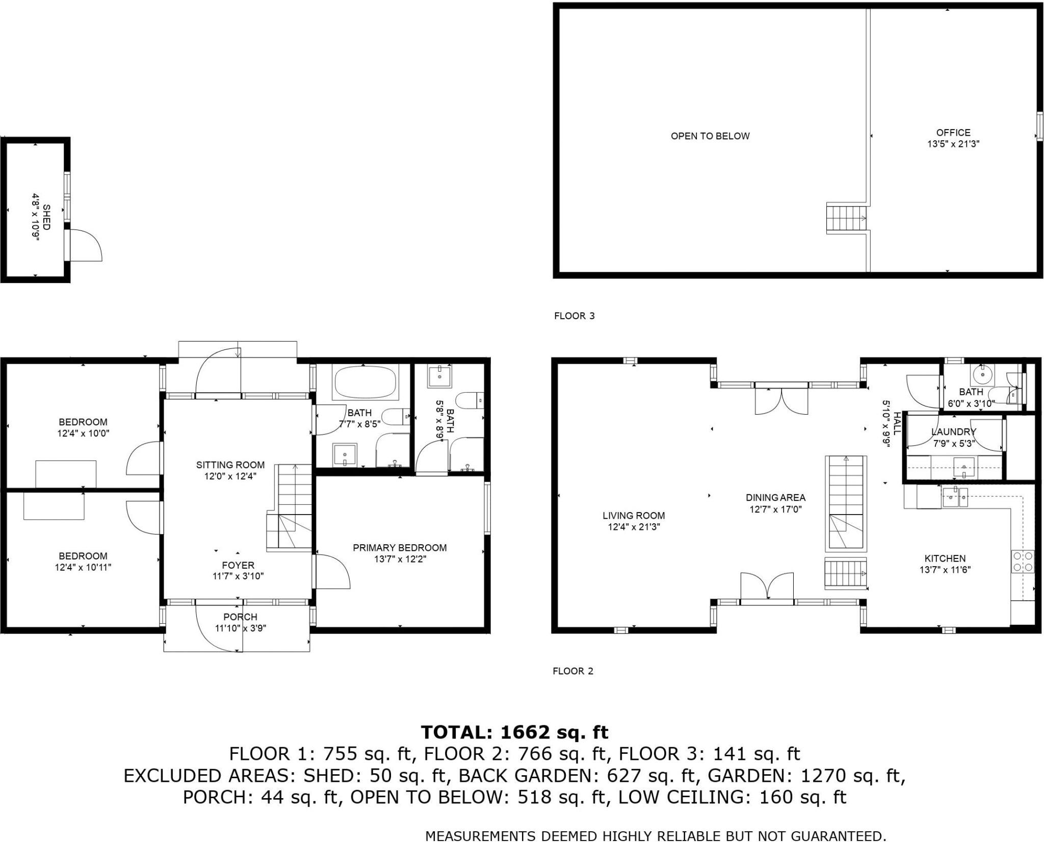
Floorplan Description

Rooms

Textual Property Features

Detected Visual Features

EPC Details

Nearby Schools

Nearest Bars And Restaurants

,,,,}

Nearest General Shops

,,}

Nearest Grocery shops

,,}

Nearest Supermarkets

,,}

Nearest Religious buildings

,,}

Nearest Medical buildings

,,,}

Nearest Leisure Facilities

,,,,}

Nearest Tourist attractions

,,}

Nearest Train stations

,,,,}

Nearest Bus stations and stops

,,,,}

Nearest Hotels

,,}

Tags

Local Market Stats

AirBnB Data

Similar Properties

Meta

High Res Images

Compatible Images

Low res Images

Thumbnails

Raw Images

High Res Floorplan Images

Compatible Floorplan Images

Low res Floorplan Images

FloorplanImages Thumbnail

Raw Floorplan Images