Spacious three-bedroom home with generous parking and wraparound gardens.
Stunning elevated sea and coastal views from multiple rooms
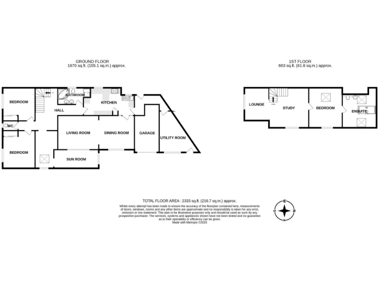
Perched in an elevated position on Loe Bar Road, this spacious three-bedroom detached dormer bungalow delivers spectacular, far-reaching sea and coastal views from multiple rooms. The property is Freehold, about 2,333 sq ft overall, with a generous lounge/diner, sunroom, useful utility, double garage and parking for several vehicles — ideal for buyers prioritising outdoor space and coastal outlooks.
The first-floor loft/sitting room and master bedroom were created to take advantage of the panorama; the vendor’s representative believes planning was granted for the conversion, but it is unclear if building regulations sign-off was completed. Practical details include double glazing, mains services, EPC C (76) and Council Tax Band E.
Outside, wrap-around, terraced gardens and multiple elevated patios provide many vantage points to enjoy the coast. The property suits a family or downsizer seeking calm seaside living with substantial internal space, but buyers should allow for potential paperwork or remedial work if the loft conversion lacks building-regulations sign-off.
Noteable constraints: broadband speeds are slow in the area and mobile signal is average. The local area shows higher deprivation metrics than nearby towns, which may influence resale and service provision. There is no flooding risk recorded.
4 bedroom detached house for sale in Sunnybank, Porthleven, TR13 — £750,000 • 4 bed • 2 bath • 1399 ft²
5 bedroom detached house for sale in Sunnybank, Porthleven, TR13 — £799,950 • 5 bed • 2 bath • 2437 ft²
3 bedroom semi-detached house for sale in Cliff Road, Porthleven, TR13 — £500,000 • 3 bed • 2 bath • 1069 ft²
2 bedroom semi-detached house for sale in Loe Bar Road, Porthleven, TR13 — £299,950 • 2 bed • 1 bath • 508 ft²
3 bedroom terraced house for sale in Home with coastal views, Porthleven, TR13 — £495,000 • 3 bed • 2 bath • 1495 ft²
1 bedroom detached house for sale in Porthleven TR13 — £395,000 • 1 bed • 1 bath


























































































































































