Chain-free family home with garden and scope for extension.
No onward chain — immediate sale possible
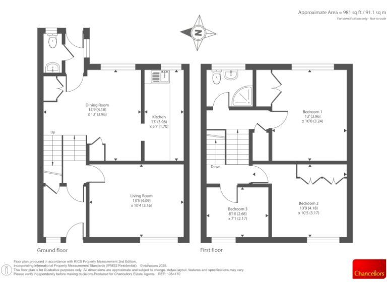
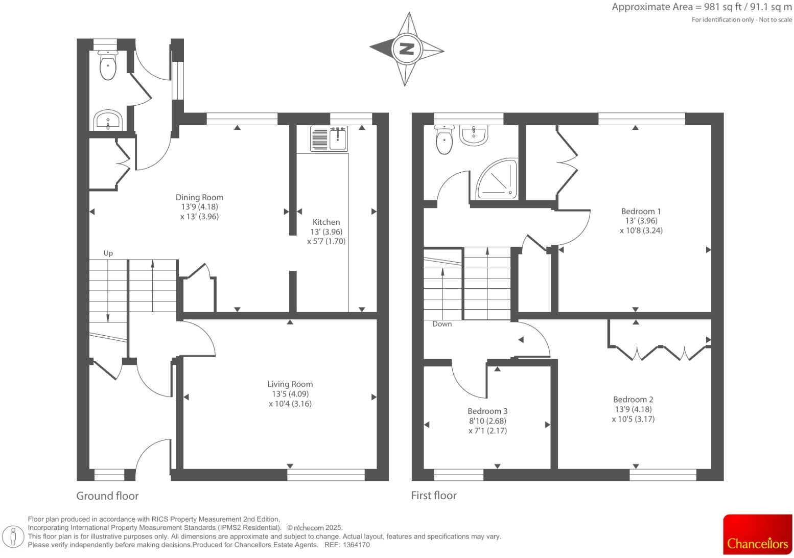
Set on a quiet cul-de-sac less than a mile from Basingstoke town centre, this three-bedroom end-terrace offers straightforward, chain-free purchase for a family or first-time buyer seeking space and future potential. The house measures around 981 sqft and includes a living room, dining room, kitchen, cloakroom, family bathroom and a generous private rear garden. Resident parking is available to the front.
The property is a mid-20th-century build (circa 1950–66) with double glazing installed before 2002 and cavity walls. There is scope to modernise and reconfigure: the kitchen could be opened into the dining room and there may be potential to extend to the rear (subject to consents). Services look practical for everyday use — mains gas supply and good broadband — but buyers should verify current heating details and service history.
Practical drawbacks are clear and should be factored into any offer. The interior is dated with an older electric fireplace in the living room and will need updating to modern tastes. The plot is relatively small and the parking is communal rather than private driveway. There is only one family bathroom plus a ground-floor cloakroom. Overall, the home represents a reasonably priced, freehold opportunity in an affluent area with good local schools and amenities, suited to buyers willing to renovate and personalise.
3 bedroom terraced house for sale in Holbein Close, Basingstoke, RG21 — £295,000 • 3 bed • 1 bath • 1025 ft²
3 bedroom end of terrace house for sale in Byron Close, BASINGSTOKE, RG24 — £290,000 • 3 bed • 1 bath • 680 ft²
3 bedroom end of terrace house for sale in Norden Close, Basingstoke, RG21 — £360,000 • 3 bed • 1 bath • 915 ft²
3 bedroom semi-detached house for sale in Corelli Road, Basingstoke, Hampshire, RG22 — £340,000 • 3 bed • 1 bath • 978 ft²
3 bedroom semi-detached house for sale in Kingsclere Road, Basingstoke, Hampshire, RG21 — £450,000 • 3 bed • 1 bath • 889 ft²
3 bedroom terraced house for sale in Willoughby Way, Basingstoke, RG23 — £300,000 • 3 bed • 1 bath • 826 ft²


















































































