BS3 4EX - Commercial development for sale in East Street, Bedminster,…

View on Property Piper

Commercial development for sale in East Street, Bedminster, Bristol, BS3

Summary - FLAT, 113, EAST STREET, BRISTOL, BEDMINSTER BS3 4EX

1 bed 1 bath Commercial Development

**Standout Features:**
- Substantial mixed-use investment property
- Large retail shop (1,342 sq. ft.), currently vacant
- Self-contained 3-bedroom maisonette above, let at £1,050 pcm
- Potential total rental income exceeding £32,000 PA
- Prime location on busy East Street, Bedminster
- Freehold tenure with 8-week completion period
- High foot traffic area with vibrant commercial activity nearby

This substantial three-storey mixed-use investment property presents an exceptional opportunity for astute investors. Situated in the bustling heart of Bedminster on East Street, it features a generous 1,342 sq. ft. ground-floor retail space ready for your vision, currently vacant, while a spacious 3-bedroom maisonette above offers a steady income stream at £1,050 pcm.

While the internal spaces could benefit from modernization, their ample size allows for flexible usage, be it for retail, office, or residential needs—ideal for families or investors alike. The area's lively commercial atmosphere promises excellent visibility for the retail unit and strong potential for growth with thriving foot traffic.

This property is not just about current income but future options as well. With the nearby developments enhancing the local appeal, now is the time to capitalize on this property’s impressive rental yield potential. Don't miss out on this lucrative mixed-use investment, as properties in such prime locations are scarce and highly sought after.

Property Details

Brochure Descriptions

Image Descriptions

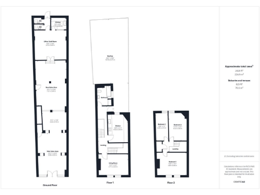
Floorplan Description

Rooms

Textual Property Features

Detected Visual Features

EPC Details

Nearby Schools

Nearest Bars And Restaurants

,,,,}

Nearest General Shops

,,}

Nearest Grocery shops

,,}

Nearest Supermarkets

,,}

Nearest Religious buildings

,,}

Nearest Medical buildings

,,,}

Nearest Airports

}

Nearest Leisure Facilities

,,,,}

Nearest Tourist attractions

,,}

Nearest Train stations

,,,,}

Nearest Bus stations and stops

,,,,}

Nearest Hotels

,,}

Tags

Local Market Stats

AirBnB Data

Similar Properties

Meta

High Res Images

Compatible Images

Low res Images

Thumbnails

Raw Images

High Res Floorplan Images

Compatible Floorplan Images

Low res Floorplan Images

FloorplanImages Thumbnail

Raw Floorplan Images