Large freehold mixed-use plot with rear development potential, sold by auction..
Substantial mixed-use asset — restaurant, basement and two-storey maisonette
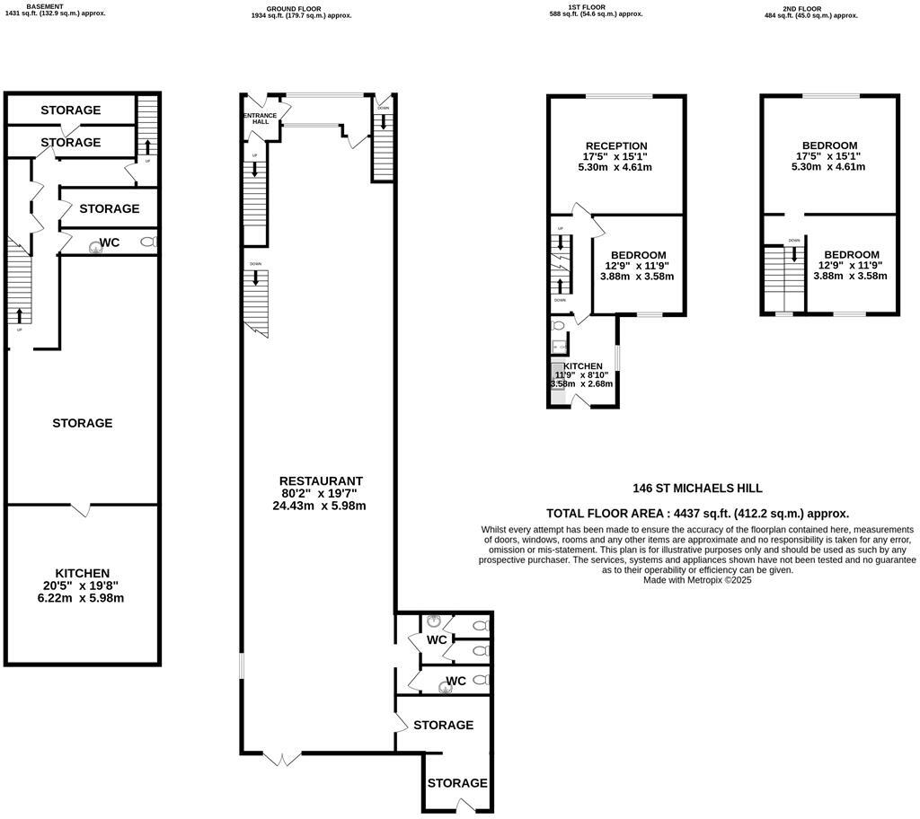
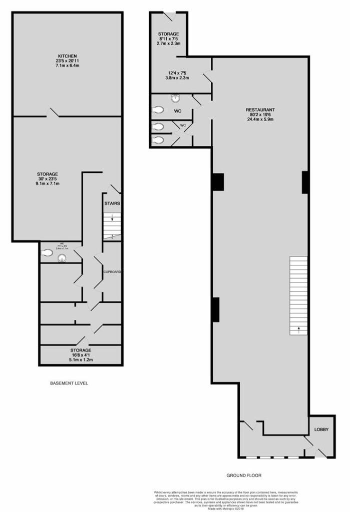
A substantial freehold mixed-use opportunity on St Michaels Hill offering c.390 m² (4,198 ft²) across a large ground-and-basement restaurant and a two-storey maisonette above. The property sits on a generous c.0.13 acre plot with rear land and outbuildings accessed from Paul Street — useful for storage, extension or redevelopment subject to consent. The building is offered with vacant possession and is presented as an investment or redevelopment play, with an indicative post-refurbishment rental potential of around £59,000pa.
The fabric is Victorian mid-terrace: solid brick walls (likely uninsulated), mains gas boiler and radiators, and an EPC rating of D. The ground-floor restaurant and sizeable basement provide an immediate commercial footprint; the maisonette offers a one-bedroom residential unit across first and second floors. The rear plot and outbuildings are a stand-out urban asset in this location, but they are described as rundown and will require clearance or refurbishment.
Material considerations for a buyer: the sale is by online auction (18 September) with a guide price of £400,000, an 8-week completion period and a £5,000 preliminary deposit plus buyer’s premium payable on completion. Planning and licensing enquiries should be prioritised — any development or conversion potential is subject to obtaining necessary consents and local authority checks (HMO/licensing may apply). The property will need refurbishment throughout; this is an opportunity for a hands-on investor prepared to manage works and planning.
4 bedroom house for sale in Period House | Garden | Kingsdown, BS2 — £400,000 • 4 bed • 3 bath • 1940 ft²
Commercial property for sale in Investment | £32,400 Pa | Redfield, BS5 — £280,000 • 2 bed • 3 bath • 1759 ft²
Commercial property for sale in Freehold Mixed Use | £56K Pa, BS6 — £475,000 • 5 bed • 4 bath • 2184 ft²
5 bedroom terraced house for sale in Freehold Mixed Use | £56K Pa, BS6 — £475,000 • 5 bed • 4 bath • 2184 ft²
4 bedroom terraced house for sale in Modernisation | Large Garden | St Pauls, BS2 — £235,000 • 4 bed • 3 bath • 1649 ft²
7 bedroom block of apartments for sale in Manor Park, Redland, Bristol, BS6 — £650,000 • 7 bed • 1 bath • 1971 ft²


















































































