High-spec two-bed bungalow with huge garden and southerly Greenbelt views.
10-year warranty included
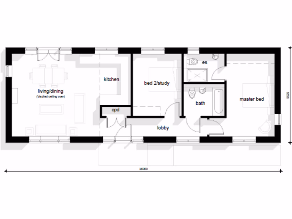
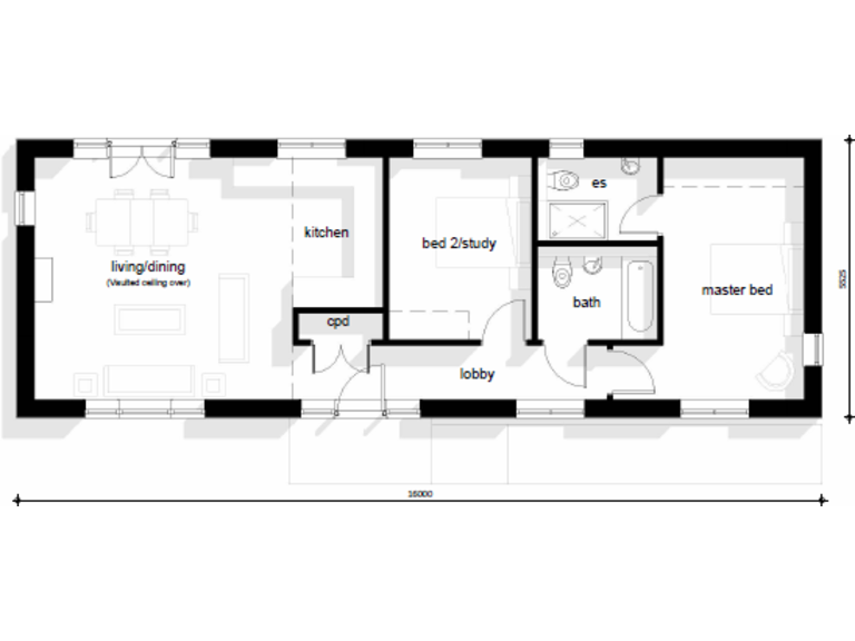
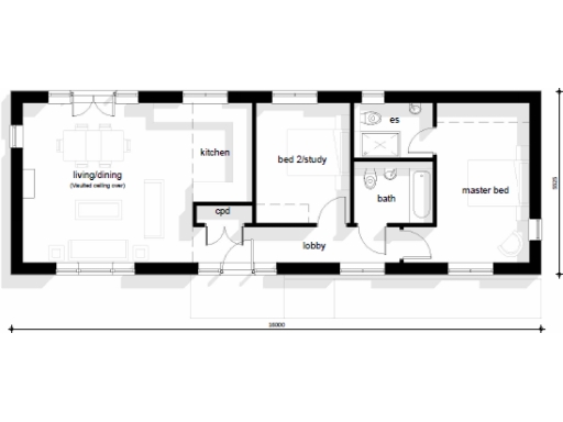
A contemporary two-bedroom detached bungalow set on a very large private plot, finished to a high specification and ready for immediate occupation. The open-plan kitchen and sitting/dining area opens onto level, enclosed southerly gardens that back onto protected Greenbelt meadowland, giving uninterrupted countryside outlooks. Energy-efficient features include an air source heat pump and underfloor heating throughout, double glazing and an included 10-year warranty.
Designed for easy single-level living, the layout offers two bedrooms and two bathrooms, including a luxury bathroom and ensuite shower room. Integrated Bosch appliances and quality finishes deliver a low-maintenance, modern home suited to downsizers or buyers seeking a high-spec new build in a quiet village setting. Off-road parking for two to three cars and access via a private road add privacy and convenience.
Buyers should note a couple of practical points: the property's tenure is not specified in the details provided, and the plot's large gardens will require regular upkeep. The location is rural and peaceful — amenities, rail services to London and road links are nearby but local services are concentrated in Lingfield (about 1.5 miles). Mobile signal is average despite fast broadband, so those relying on strong mobile reception should check coverage.
Overall this final release in a small development offers modern, low-energy single-storey living with strong countryside character and practical parking, suited to those seeking an easy-to-run home near village facilities and transport links.
2 bedroom bungalow for sale in Oldencraig Mews, Lingfield, RH7 — £550,000 • 2 bed • 2 bath • 796 ft²
3 bedroom detached house for sale in Limewood, Lonesome Lane, Reigate, RH2 — £775,000 • 3 bed • 2 bath • 1184 ft²
3 bedroom bungalow for sale in Hammonds Green, Framfield, Uckfield, East Sussex, TN22 — £925,000 • 3 bed • 2 bath • 1242 ft²
3 bedroom detached bungalow for sale in The Close, Horley, RH6 — £700,000 • 3 bed • 2 bath • 1163 ft²
4 bedroom detached bungalow for sale in Claridge Gardens, Dormansland, RH7 — £875,000 • 4 bed • 2 bath • 1529 ft²
3 bedroom detached house for sale in Dwelly Lane, Edenbridge, TN8 — £750,000 • 3 bed • 2 bath • 704 ft²






































































