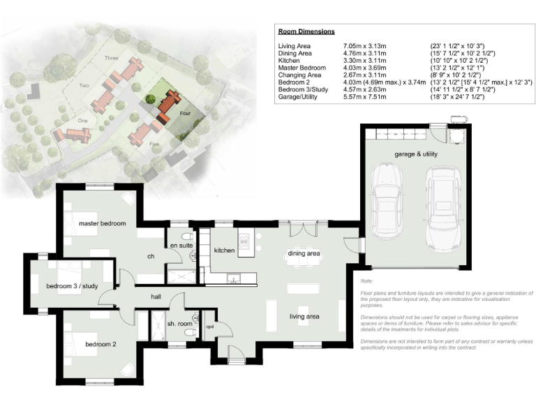
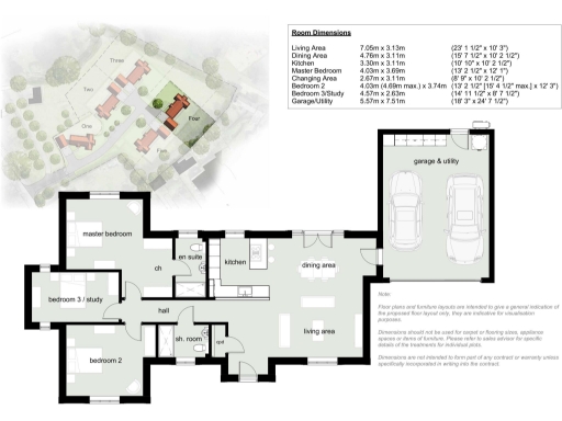
**Standout Features:**
- Newly built, modern detached bungalow in a private courtyard of five.
- Three spacious bedrooms, including a master suite with en-suite shower room.
- Expansive open-plan living and dining area, with a contemporary fitted kitchen.
- Large double garage with utility area and private block-paved driveway.
- Generous gardens with privacy and seclusion, landscaped for outdoor enjoyment.
- Built-to-high specification with energy-efficient features like underfloor heating and air source heat pump.
- Located in a low-crime village with excellent local amenities and schools.
**Summary Description:**
Discover your dream home in this stunning, brand new detached bungalow that merges contemporary design with comfortable countryside living. Set within a select development of just five properties, this unique home boasts three well-proportioned bedrooms including a luxurious master with a dedicated dressing area and en-suite, as well as a stylish family bathroom. The heart of the home is the impressive open-plan kitchen, living, and dining space, perfect for both relaxation and entertaining.
Efficiently designed with modern oak joinery, premium aluminium windows, and energy-saving underfloor heating powered by an air source heat pump, this bungalow offers both luxury and sustainability. Enjoy the tranquility of your large, landscaped gardens that wrap around the property, providing a secluded outdoor oasis perfect for family gatherings or peaceful retreats. With a large double garage and additional parking, convenience is at your fingertips.
Nestled on the edge of the picturesque village of Framfield, you'll appreciate the low crime rates and access to highly regarded schools, making it an ideal spot for families. Local amenities are within reach, along with beautiful countryside walks. Don’t miss this exclusive opportunity to own a modern home in a serene community—schedule your viewing today to envision your future in this beautiful retreat.
3 bedroom bungalow for sale in Hammonds Green, Framfield, Uckfield, East Sussex, TN22 — £935,000 • 3 bed • 2 bath • 1035 ft²
3 bedroom bungalow for sale in The Courtyard, Framfield, Uckfield, East Sussex, TN22 — £935,000 • 3 bed • 2 bath • 1043 ft²
2 bedroom detached bungalow for sale in Street End Lane, Broad Oak, Heathfield, TN21 — £560,000 • 2 bed • 2 bath • 937 ft²
2 bedroom detached bungalow for sale in Preston Grove, Framfield, TN22 — £575,000 • 2 bed • 1 bath • 1018 ft²
2 bedroom detached bungalow for sale in East Beeches Road, Crowborough, TN6 — £450,000 • 2 bed • 1 bath • 793 ft²
3 bedroom detached bungalow for sale in Bellamy Gardens, Lewes Road, BN8 — £725,000 • 3 bed • 2 bath • 1413 ft²


































































