TQ9 6LS - 4 bed spacious totnes townhouse in Newton Road, TQ9 6LS

View on Property Piper

4 bedroom terraced house for sale in The Bourtons, Newton Road, Totnes, TQ9

Summary - THE BOURTONS 10 NEWTON ROAD TOTNES TQ9 6LS

4 bed 2 bath Terraced

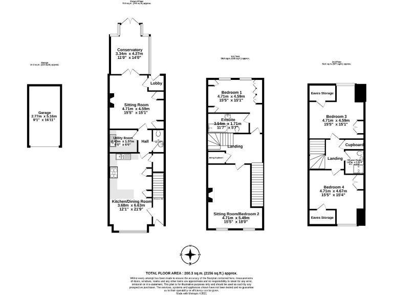
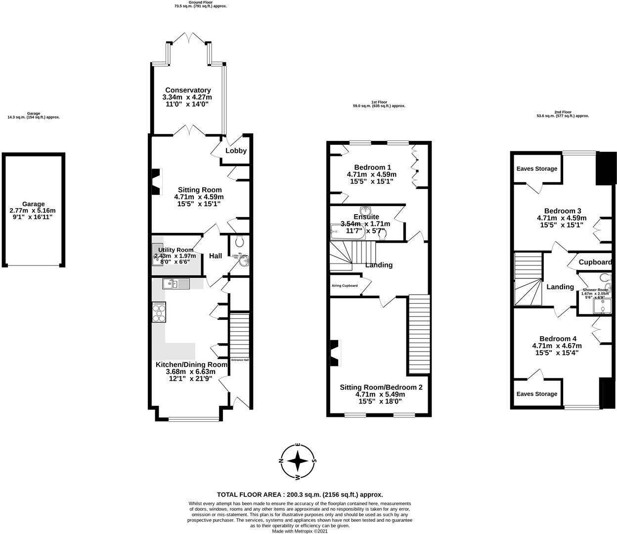
Three-storey family home with garage, gardens and countryside views close to Totnes centre.
Four double bedrooms including ensuite (principal bedroom)
This handsome three-storey townhouse on Newton Road offers spacious family living in a peaceful Totnes-edge development. Set over three floors, the layout includes multiple reception rooms, a modern kitchen/diner, conservatory and versatile bedroom space that suits family life and home-working.

Upstairs the principal bedroom benefits from an ensuite; two further double bedrooms sit on the top floor with elevated countryside views. The first-floor snug/home office could serve as a fourth bedroom if required, giving flexible accommodation for children or guests.

Outside, thoughtfully landscaped front and rear gardens provide easy-care outdoor space and privacy. Practical conveniences include a single garage, two allocated parking spaces and good access to Totnes town centre, the mainline station and the A38.

Buyers should note the property’s EPC rating of D and council tax band D, both of which are above average and worth factoring into running costs. The house was converted in the 1990s and has double glazing installed before 2002; while well maintained, some buyers may wish to update energy-efficiency and modern finishes over time.

Property Details

Brochure Descriptions

Image Descriptions

Floorplan Description

Rooms

Textual Property Features

Target Audience

AI Tags

Detected Visual Features

EPC Details

Nearby Schools

Nearest Bars And Restaurants

,,,,}

Nearest General Shops

,,}

Nearest Grocery shops

,,}

Nearest Supermarkets

,,}

Nearest Religious buildings

,,}

Nearest Medical buildings

,,,}

Nearest Leisure Facilities

,,,,}

Nearest Tourist attractions

,,}

Nearest Train stations

,,,,}

Nearest Bus stations and stops

,,,,}

Nearest Hotels

,,}

Tags

Local Market Stats

AirBnB Data

Similar Properties

Meta

High Res Images

Compatible Images

Low res Images

Thumbnails

Raw Images

High Res Floorplan Images

Compatible Floorplan Images

Low res Floorplan Images

FloorplanImages Thumbnail

Raw Floorplan Images