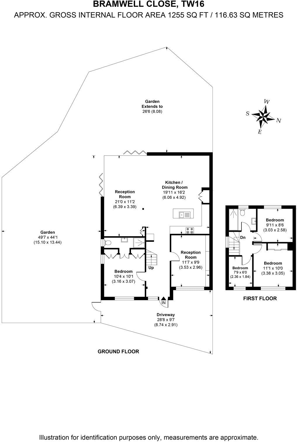
**Standout Features:**
- Four spacious bedrooms; ground-floor bedroom with ensuite
- Extended to the rear and side, creating extensive living space
- Recently renovated to a pristine finish, ready for immediate enjoyment
- Beautifully landscaped garden with private patio and large lawn area
- Off-road parking and excellent mobile signal
- Located in a quiet, affluent community near sought-after schools
**Summary:**
Discover this stunning four-bedroom semi-detached home, thoughtfully extended and renovated to a pristine standard, situated on a substantial corner plot in Lower Sunbury. Families will appreciate the generous open-plan kitchen diner, featuring dual bi-folding doors that seamlessly connect to a beautifully landscaped garden—perfect for entertaining or enjoying serene family moments. The ground-floor bedroom with its concealed ensuite shower suite offers flexibility as a guest room or home office.
Set on a quiet street within walking distance to the River Thames, you’ll not only enjoy a peaceful retreat but also access to excellent local amenities and esteemed schools, including St Paul's Catholic College, rated Outstanding. With access to sports facilities and quick public transport, this property perfectly balances comfort and convenience. Priced at £799,950, this exquisite home won't last long—schedule your viewings today to secure this unique opportunity!
4 bedroom terraced house for sale in Bowater Gardens, Lower Sunbury, TW16 — £650,000 • 4 bed • 3 bath • 1400 ft²
4 bedroom end of terrace house for sale in Roper Crescent, Lower Sunbury, TW16 — £775,000 • 4 bed • 2 bath • 1500 ft²
5 bedroom semi-detached house for sale in Staines Road East, Sunbury-On-Thames, TW16 — £750,000 • 5 bed • 3 bath • 1757 ft²
4 bedroom detached house for sale in Bramwell Close, Sunbury-on-Thames, Surrey, TW16 — £750,000 • 4 bed • 2 bath • 1464 ft²
4 bedroom semi-detached house for sale in Beverley Road, Sunbury-on-Thames, Surrey, TW16 — £525,000 • 4 bed • 3 bath • 1251 ft²
3 bedroom terraced house for sale in Elizabeth Gardens, Sunbury-On-Thames, TW16 — £595,000 • 3 bed • 2 bath • 1411 ft²






































































