Chain-free three-bedroom with summerhouse and easy commuter links.
Three bedrooms with generous lounge and kitchen/diner space
Chain-free freehold — ready for a quicker completion
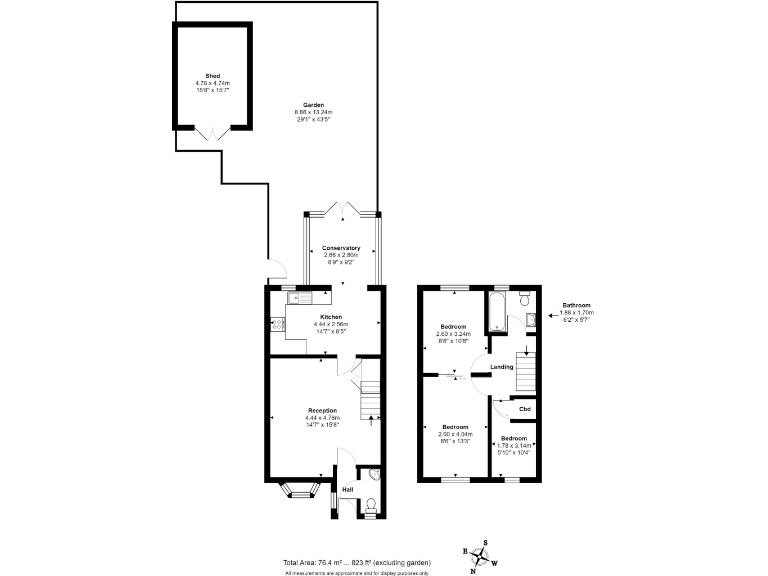
Large rear garden (approx 43'1") with sizable summer house/cabin
Off-street parking for two cars plus nearby visitor spaces
Conservatory adds extra living space overlooking the garden
Dated decor and some wear — requires modernisation throughout
Medium flood risk; local crime levels reported as very high
Cavity walls likely uninsulated; consider energy-efficiency upgrades
This extended three-bedroom semi-detached house in London Colney offers practical family living with immediate move-in potential. The lounge and kitchen/diner provide generous daytime space, complemented by a conservatory that overlooks a long rear garden. The standout summer house (approx 15'8" x 15'7") presents genuine home office or hobby space, separate from the main living areas.
Practical benefits include off-street parking for two cars, chain-free freehold tenure and fast broadband with excellent mobile signal — useful for commuters and remote workers. The property sits close to shops, schools (including several Good and Outstanding-rated options) and regular bus routes, making daily errands and school runs straightforward.
Buyers should note a few material points: the house shows dated decor and wear and will need updating in places, the small third bedroom limits flexibility, and the building dates from the late 1960s/70s so consideration of energy upgrades (cavity walls assumed uninsulated) may be needed. There is a medium flood risk for the area and local crime levels are described as very high, which may influence insurance and security choices.
Overall this is a sensible purchase for a family or commuter couple seeking chain-free possession and outdoor space with a versatile summerhouse. With some targeted improvements and sensible security and insulation upgrades, the home offers solid long-term value in a convenient, well-served area.
2 bedroom house for sale in Halsey Park, London Colney, AL2 — £399,950 • 2 bed • 1 bath • 603 ft²
3 bedroom end of terrace house for sale in Peters Avenue, London Colney, St. Albans, AL2 — £625,000 • 3 bed • 2 bath • 1419 ft²
3 bedroom house for sale in Oldfield Road, London Colney, AL2 — £499,950 • 3 bed • 1 bath • 850 ft²
3 bedroom end of terrace house for sale in Kings Road, London Colney, AL2 — £475,000 • 3 bed • 1 bath • 859 ft²
5 bedroom semi-detached house for sale in High Street, London Colney, AL2 — £499,950 • 5 bed • 2 bath • 1625 ft²
3 bedroom semi-detached house for sale in Bellchambers Close, London Colney, AL2 — £525,000 • 3 bed • 2 bath • 904 ft²






















































































