Ideal for independent retirees seeking village convenience and on-site support.
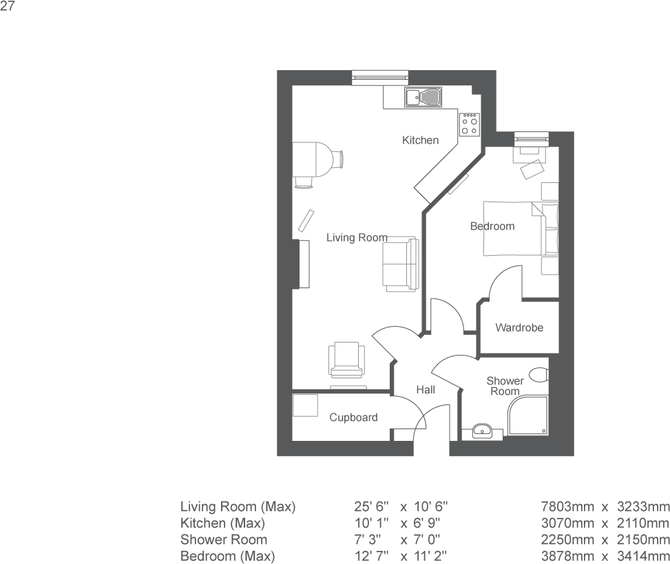
- One-bedroom first-floor apartment, about 59 sqm (635 sq ft)
- North-west facing with private views over Fosse Way
- Communal lounge, on-site restaurant, and 24-hour assistance
- Level-access shower, slip-resistant flooring, fitted flooring throughout
- Shared ownership leasehold; 984 years remaining on lease
- Service charge approximately £2,484 per year
- Electric room heaters (higher running costs) and slow broadband
- Pets allowed; flexible care packages available
A bright, easy-to-manage one-bedroom apartment in Hawkesbury Place, Stow-on-the-Wold, designed for independent retirement living. The first-floor, north-west facing home measures around 59 sqm (635 sq ft) and offers private views over Fosse Way, an open-plan living area and a bedroom with a walk-in wardrobe. Fitted kitchen appliances, fitted flooring throughout and a level-access shower add practical convenience for day-to-day life.
The development provides communal facilities aimed at sociable, supported living: an elegant lounge, on-site restaurant serving freshly prepared meals, and 24-hour on-site assistance with a monitored emergency call system. Flexible care packages are available to tailor support as needs change. Pets are permitted, and transport links connect easily to nearby towns and local amenities including shops, cafés and a supermarket.
Important practical points: the home is leasehold with shared ownership options and an exceptionally long lease (984 years). Annual service charge is approximately £2,484, council tax is moderate, and the property uses electric room heaters, which can mean higher running costs. Broadband speeds are reported slow. These factors should be weighed alongside the low-maintenance accommodation and strong local setting.
1 bedroom retirement property for sale in Fosseway,
Stow On The Wold,
GL54 1FF
, GL54 — £249,950 • 1 bed • 1 bath • 634 ft²
2 bedroom retirement property for sale in Fosseway,
Stow On The Wold,
GL54 1FF
, GL54 — £202,500 • 2 bed • 1 bath • 710 ft²
1 bedroom retirement property for sale in Fosseway,
Stow On The Wold,
GL54 1FF
, GL54 — £135,000 • 1 bed • 1 bath • 624 ft²
2 bedroom retirement property for sale in Fosseway,
Stow On The Wold,
GL54 1FF
, GL54 — £349,995 • 2 bed • 1 bath • 921 ft²
2 bedroom apartment for sale in Hawkesbury Place, Fosseway, Stow on the Wold, GL54 — £320,000 • 2 bed • 1 bath • 861 ft²
1 bedroom retirement property for sale in Fosseway,
Stow On The Wold,
GL54 1FF
, GL54 — £259,995 • 1 bed • 1 bath • 519 ft²


























































































































































