Sociable, low-maintenance living close to shops and country walks.
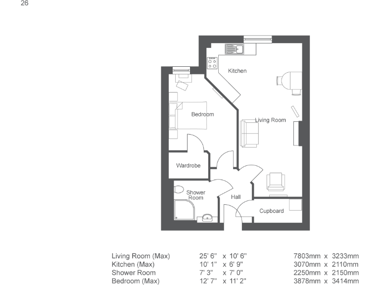
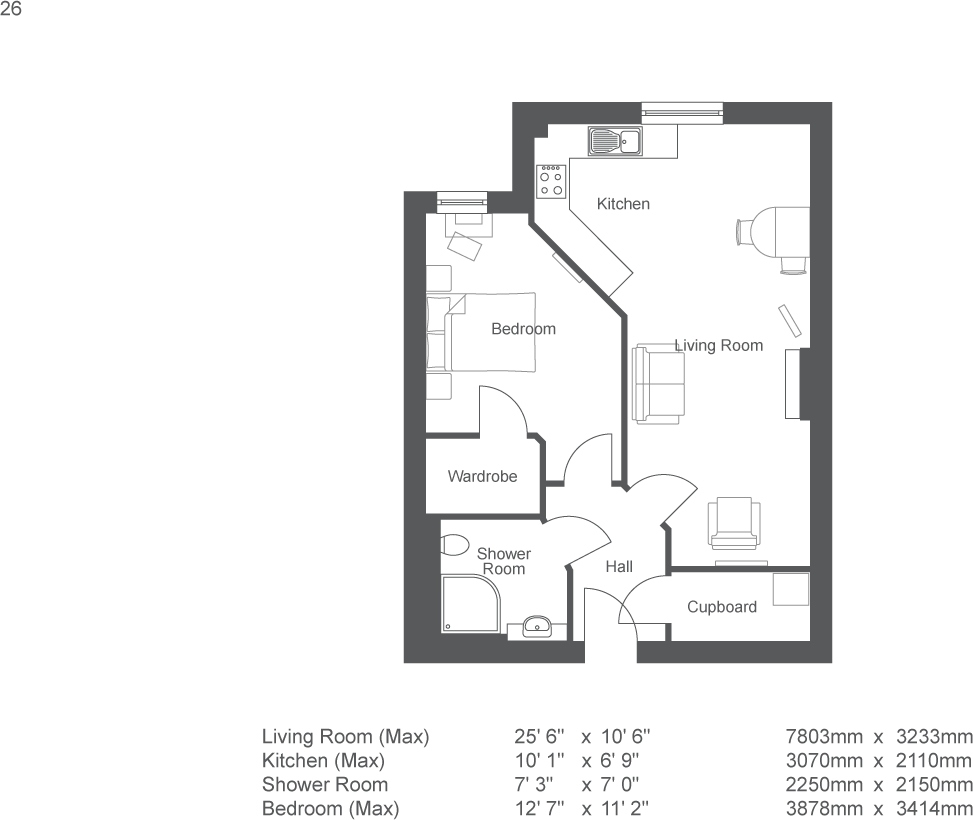
One bedroom, 634 sq ft open-plan apartment
Set within a handsome Cotswold-styled development in Stow‑on‑the‑Wold, this one-bedroom apartment offers retirement living with strong communal facilities. The open-plan living space and fitted kitchen create a bright, low-maintenance home ready to move into. The bedroom includes a walk-in wardrobe and the shower room features level access and slip‑resistant flooring for ease of use.
Residents benefit from an elegant communal lounge, an on-site restaurant serving daily meals, and flexible care packages tailored to individual needs. Pets are permitted and the apartment sits on the first floor with a north‑west aspect, enjoying the town’s picturesque surroundings and easy access to cafes, shops and transport links.
Practical points to note: the property is leasehold (long lease remaining), heated by electric room heaters and uses mains electricity. Broadband speeds are noted as slow, which may affect heavy online use. The apartment’s modern construction and an SAP rating up to 83 mean good energy performance for an electric‑heated home.
This apartment will suit someone seeking a sociable retirement setting with on-site services and low day‑to‑day maintenance. It’s especially appealing for downsizers who value community, safety features and a compact, accessible layout in a desirable market town.
1 bedroom retirement property for sale in Fosseway,
Stow On The Wold,
GL54 1FF
, GL54 — £259,995 • 1 bed • 1 bath • 519 ft²
1 bedroom retirement property for sale in Fosseway,
Stow On The Wold,
GL54 1FF
, GL54 — £135,000 • 1 bed • 1 bath • 635 ft²
2 bedroom retirement property for sale in Fosseway,
Stow On The Wold,
GL54 1FF
, GL54 — £202,500 • 2 bed • 1 bath • 710 ft²
2 bedroom apartment for sale in Hawkesbury Place, Stow on the Wold, Cheltenham, Gloucestershire, GL54 — £225,000 • 2 bed • 1 bath • 913 ft²
2 bedroom retirement property for sale in Fosseway,
Stow On The Wold,
GL54 1FF
, GL54 — £349,995 • 2 bed • 1 bath • 921 ft²
2 bedroom apartment for sale in Hawkesbury Place, Fosseway, Stow on the Wold, GL54 — £330,000 • 2 bed • 1 bath • 721 ft²


























































































































































