**Standout Features:**
- 999-year lease remaining (established in 2003)
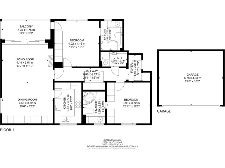
- Spacious 2 double bedrooms, each with modern en-suites
- Stunning views over the South Downs from a secluded balcony
- Access to communal swimming pool, tennis court, and expansive gardens (40 acres)
- Double garage and visitor parking available
- Lift access to all floors, making it suitable for all ages
- Located in an affluent, low-crime area with excellent amenities
**Potential Downsides:**
- Some areas may require updates or personal touches
- Broadband speeds are noted as very slow
Discover serene living in this superb first-floor apartment in Haslemere, offering spectacular views of the South Downs and an array of impressive communal facilities. With two spacious double bedrooms boasting modern en-suites and built-in wardrobes, you’ll have a comfortable and stylish retreat to call home. The open-plan living area is perfect for entertaining, seamlessly extending to a private balcony where you can relax and enjoy the tranquil surroundings.
This coveted property comes with a double garage and highlights included access to a swimming pool and tennis court, making it ideal for families or active individuals. Situated in a highly desirable area, the apartment is within reach of excellent schools, boutique shops, and leisure facilities, enhancing its appeal for both families and investors.
Experience the best of countryside living while maintaining convenient access to London and the South Coast. With no onward chain, this unique opportunity to own a home in a peaceful setting won’t last long—schedule a viewing today to envision your future in this charming community!
2 bedroom apartment for sale in Lythe Hill Park, Haslemere, GU27 — £550,000 • 2 bed • 2 bath • 1429 ft²
2 bedroom flat for sale in Lythe Hill Park, Haslemere, GU27 — £510,000 • 2 bed • 2 bath • 1100 ft²
2 bedroom apartment for sale in Meadowlands Drive, Haslemere, Surrey, GU27 — £325,000 • 2 bed • 2 bath • 1000 ft²
2 bedroom apartment for sale in Hazel Grove, Hindhead, Surrey, GU26 — £335,000 • 2 bed • 2 bath • 721 ft²
2 bedroom flat for sale in Adams Walk, Midhurst, West Sussex, GU29 — £500,000 • 2 bed • 2 bath • 925 ft²
3 bedroom ground floor flat for sale in Lythe Hill Park, Haslemere, GU27 — £400,000 • 3 bed • 2 bath • 1139 ft²






























































































