Turnkey central apartment with parking and concierge in a prime transport hub.
Freshly renovated throughout with modern open-plan kitchen
Generous bedroom with en suite shower room
On-site porter and residents' off-street parking included
Excellent transport: Baker Street, Marylebone, Edgware Road nearby
Lease c.75 years remaining — may limit mortgage availability
Service charge high at £7,232 per annum; factor ongoing costs
Located in a busy, inner-city area with high local crime statistics
Built 1930s on solid brick walls; likely minimal cavity insulation
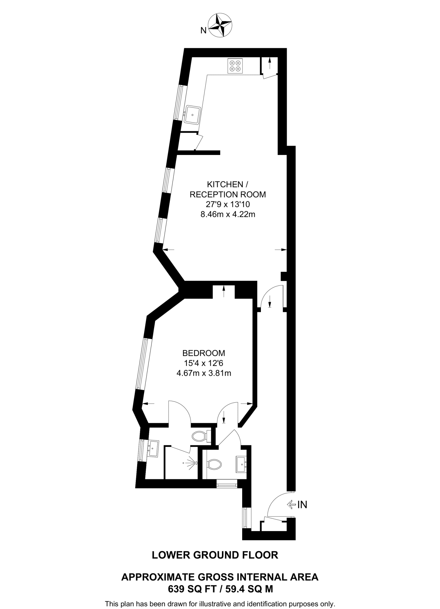
This freshly renovated one-bedroom apartment sits within an iconic 1930s mansion block on Marylebone Road. The flat feels bright and airy with high ceilings, a modern open-plan kitchen fitted with high-spec appliances, and a generous bedroom with an immaculate en suite shower room. On-site porter and resident parking add everyday convenience in a central location.
Transport links are excellent: Baker Street, Marylebone and Edgware Road stations are all within easy walking distance, making city and national rail travel straightforward. Local amenities are extensive, from supermarkets and cafes to theatres and gyms, and several highly rated primary and secondary schools are nearby.
Important practical points: the property is leasehold with around 75 years remaining. This is low for the market and may restrict mortgage options—some lenders could refuse to lend. The service charge is above average, which should be budgeted for alongside the small ground rent.
Overall, this apartment suits a buyer who values a turnkey, central-London home with parking and concierge-style service, but who understands the lease length and higher running costs and can either buy outright or secure specialist financing.
 2 bedroom flat for sale in Baker Street, Marylebone, London, NW1 — £1,600,000 • 2 bed • 2 bath • 1239 ft²
 2 bedroom flat for sale in Baker Street, Marylebone, London, NW1 — £1,600,000 • 2 bed • 2 bath • 1239 ft² 1 bedroom flat for sale in Blandford Street, Marylebone, London, W1U — £675,000 • 1 bed • 1 bath • 427 ft²
 1 bedroom flat for sale in Blandford Street, Marylebone, London, W1U — £675,000 • 1 bed • 1 bath • 427 ft² 3 bedroom flat for sale in Marylebone Road, Maryelbone, NW1 — £1,595,000 • 3 bed • 2 bath • 1295 ft²
 3 bedroom flat for sale in Marylebone Road, Maryelbone, NW1 — £1,595,000 • 3 bed • 2 bath • 1295 ft² 2 bedroom flat for sale in Oxford & Cambridge Mansions, Marylebone, NW1 — £630,000 • 2 bed • 1 bath • 641 ft²
 2 bedroom flat for sale in Oxford & Cambridge Mansions, Marylebone, NW1 — £630,000 • 2 bed • 1 bath • 641 ft² 1 bedroom flat for sale in Lisson Street, Marylebone, NW1 — £400,000 • 1 bed • 1 bath • 469 ft²
 1 bedroom flat for sale in Lisson Street, Marylebone, NW1 — £400,000 • 1 bed • 1 bath • 469 ft² 2 bedroom flat for sale in Bickenhall Mansions, Marylebone, W1U — £1,100,000 • 2 bed • 2 bath • 1149 ft²
 2 bedroom flat for sale in Bickenhall Mansions, Marylebone, W1U — £1,100,000 • 2 bed • 2 bath • 1149 ft²


























































































