BS32 4HU - 3 bedroom semidetached house for sale in South Road, Almond…

View on Property Piper

3 bedroom semi-detached house for sale in South Road, Almondsbury, Bristol, BS32

Summary - 30 South Road, Almondsbury BS32 4HU

3 bed 2 bath Semi-Detached

**Property Highlights:**
- Semi-detached, 3-bedroom house in Almondsbury
- Open-plan lounge diner with a cozy fireplace
- Fitted, integrated kitchen
- Off-street parking and a large garden
- Requires renovation; sold chain-free at auction
- Generous plot size offers expansion potential
- Excellent local amenities and access to schools

This semi-detached house in the highly sought-after location of Almondsbury presents an exciting opportunity for both investors and families. Boasting a spacious open-plan lounge diner featuring a charming fireplace, this home is filled with potential. The fitted kitchen is adjacent to a large conservatory that overlooks the private rear garden—ideal for relaxation or outdoor gatherings.

Situated on a generous plot, there’s ample space for potential expansion or further development. However, do note that the property requires renovation, allowing the new owners to customize according to their unique tastes. The backyard offers both a paved area and expansive lawn, perfect for children or pets to play. Additionally, off-street parking accommodates multiple vehicles.

Set in a peaceful neighborhood with convenient access to local amenities, schools, and major transport links, this home provides an ideal blend of tranquility and accessibility. Don’t miss this chance to transform this potential-packed property into your dream family home!

Property Details

Brochure Descriptions

Image Descriptions

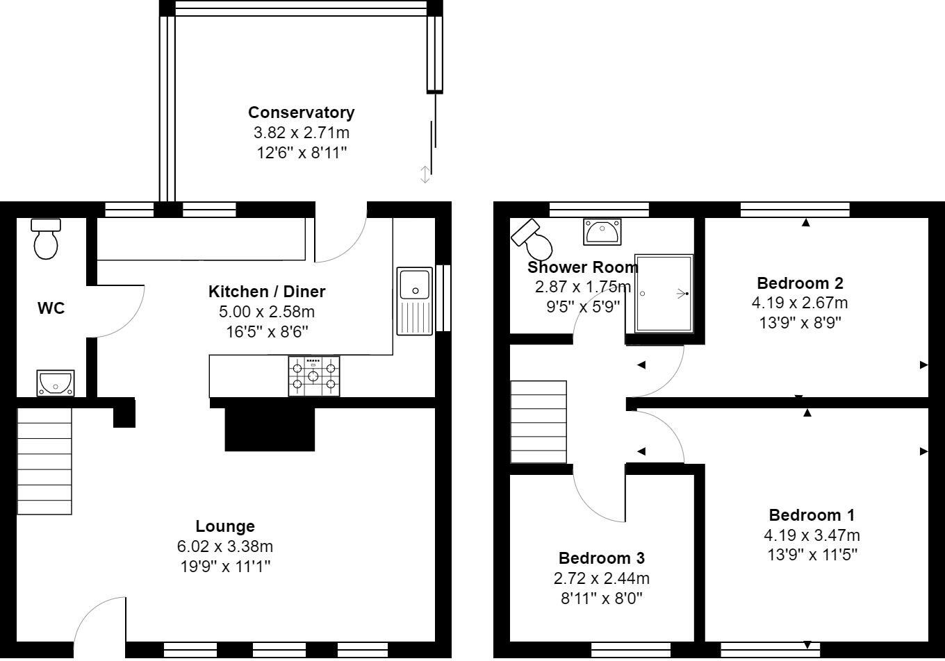
Floorplan Description

Rooms

Textual Property Features

Detected Visual Features

EPC Details

Nearby Schools

Nearest Bars And Restaurants

,,,,}

Nearest General Shops

,,}

Nearest Grocery shops

,,}

Nearest Supermarkets

,,}

Nearest Religious buildings

,,}

Nearest Medical buildings

,,,}

Nearest Airports

}

Nearest Leisure Facilities

,,,,}

Nearest Tourist attractions

,,}

Nearest Train stations

,,,,}

Nearest Bus stations and stops

,,,,}

Nearest Hotels

,,}

Tags

Local Market Stats

AirBnB Data

Similar Properties

Meta

High Res Images

Compatible Images

Low res Images

Thumbnails

Raw Images

High Res Floorplan Images

Compatible Floorplan Images

Low res Floorplan Images

FloorplanImages Thumbnail

Raw Floorplan Images