**Standout Features:**
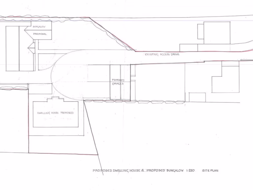
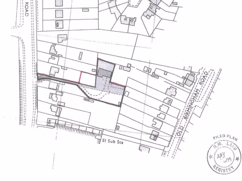
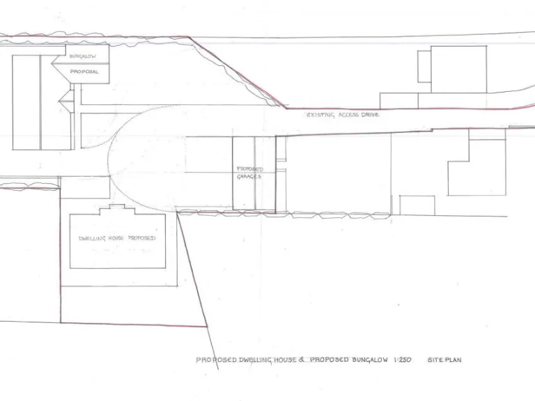
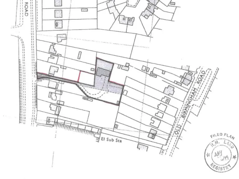
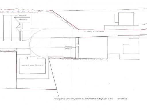
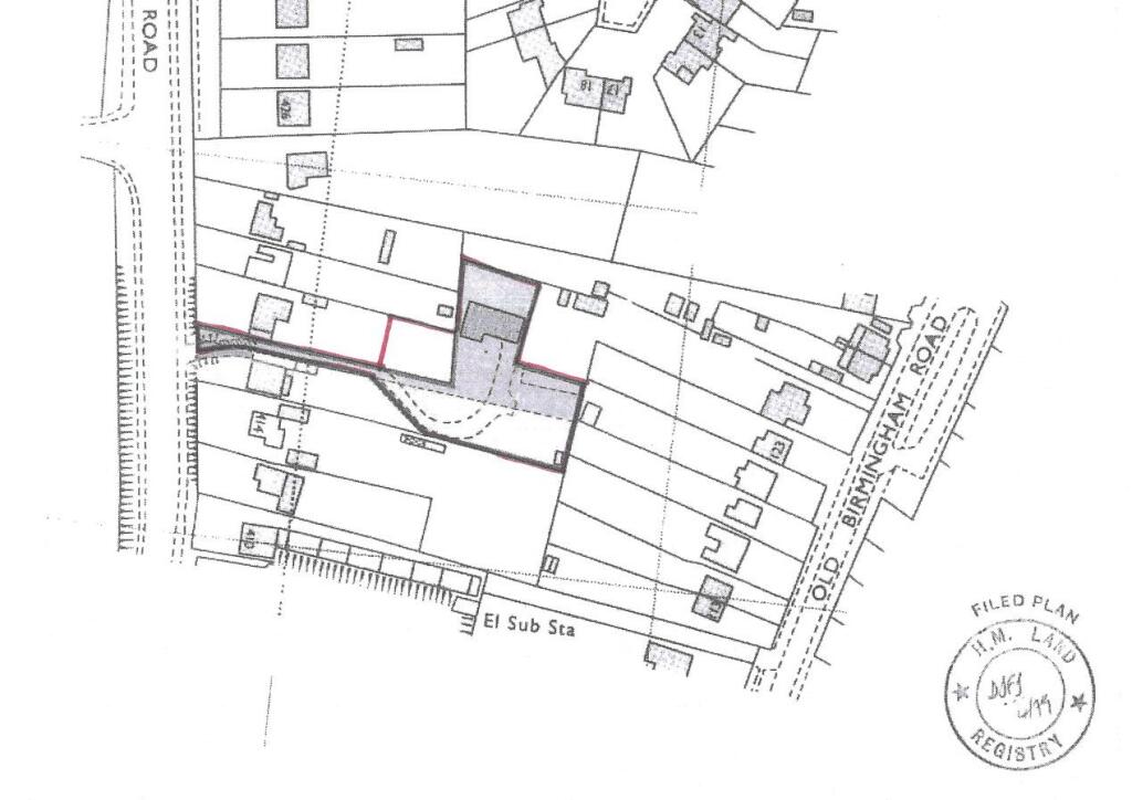
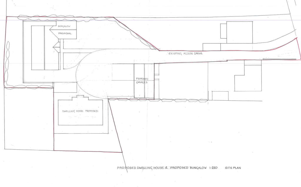
- Building plot for two residential dwellings, approximately 0.45 acres.
- Previous planning granted for a detached two-storey house (2,870 sqft) and a detached bungalow (1,590 sqft) with a pair of garages.
- Mains services available; subject to connection charges.
- Set in a desirable residential area with access to M42 and M5 motorways.
- Low crime rate and highly rated local schools.
**Summary:**
Unlock the potential of this generous 0.45-acre building plot in the appealing area of Marlbrook, Bromsgrove—ideal for investors or families looking to create their dream homes. Previously granted planning permission—which has since lapsed—for the construction of two residential properties—a spacious two-storey house and a charming bungalow—provides a promising foundation for development, pending reinstatement.
The desirable location offers excellent connectivity between the M5 and M42 motorways, making it perfect for commuting to Birmingham and Bromsgrove's amenities. The plot benefits from access to all mains services, ensuring a seamless transition into a building project. Surrounded by low crime neighborhoods and solid education options, this property also caters to family needs, promising comfort and security for future residents.
Don’t miss the opportunity to shape this prime piece of land—this offering won't last long!
Land for sale in Timberhonger Lane, Upton Warren, Bromsgrove, Worcestershire, B61 — £450,000 • 1 bed • 1 bath • 4900 ft²
Plot for sale in Foxlydiate Lane, Redditch B97 — £325,000 • 4 bed • 3 bath • 2080 ft²
Land for sale in Land Adjacent To, 2 Elmdon Road, Marston Green, Birmingham, B37 — £75,000 • 1 bed • 1 bath
Land for sale in Blackwell Road, Bromsgrove, B60 — £20,000 • 1 bed • 1 bath
Land for sale in Land, Foley Gardens, Stoke Prior, Bromsgrove, B60 4LD, B60 — £450,000 • 5 bed • 3 bath • 711 ft²
Land for sale in Site on Laurel Bank, Blackwell, Bromsgrove, B60 1PD, B60 — £400,000 • 1 bed • 1 bath • 7797 ft²


















































