City-centre two-bedroom with driveway and garden, ideal starter purchase.
Two double bedrooms with built-in wardrobes
Driveway parking for one vehicle to the front
Good-size rear garden, low-maintenance patio and lawn
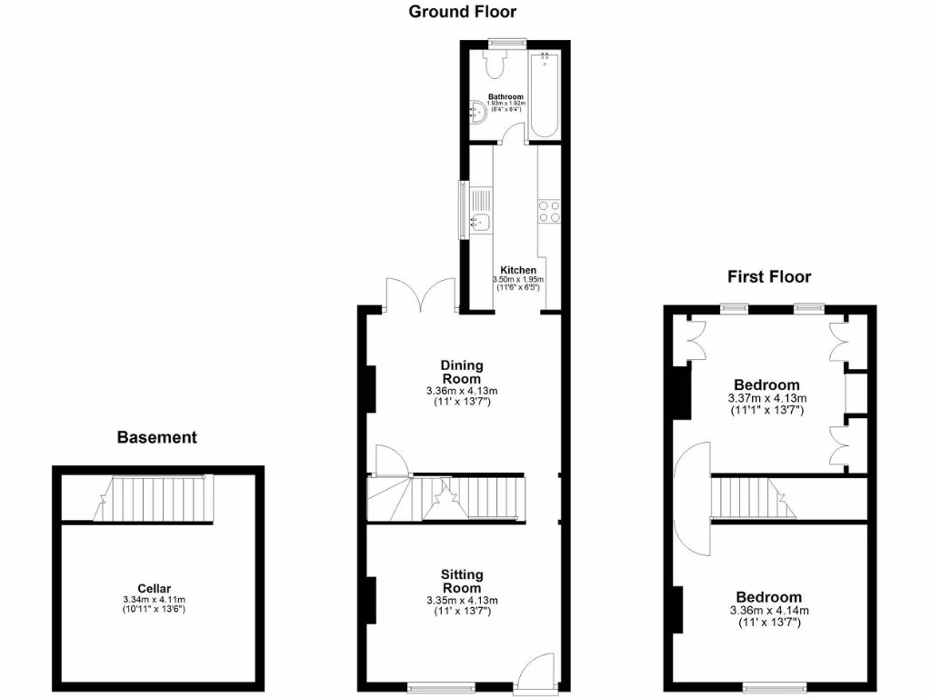
Basement cellar provides extra storage space
Period features: sash-style windows and exposed brick fireplace
Solid brick construction; likely no wall insulation (energy upgrade needed)
Local area: higher crime rates and signs of deprivation
Small-to-average footprint; limited external space and storage
This mid-terrace Victorian townhouse offers straightforward starter accommodation in Worcester WR2. The house has two double bedrooms, a separate dining room, a ground-floor bathroom and a useful cellar, arranged over two floors with a compact footprint totalling about 857 sq ft. A driveway for one car and a modest, low-maintenance rear garden add practical outdoor space in an otherwise urban setting.
Internally the property is presented in generally good order with hardwood floors, fitted wardrobes in the bedrooms and traditional period detailing such as sash-style windows and an exposed brick fireplace. Heating is mains gas with a boiler and radiators; glazing is double but install date is unknown. The layout and condition suit a first-time buyer or a landlord seeking a sensibly priced buy-to-let with straightforward rental appeal.
Buyers should note material points clearly: the terrace was built circa 1900–1929 and has solid brick walls likely without insulation, so energy improvements may be needed. The local area shows higher crime and deprivation indicators, which could affect resale or rental values. Plot size and rooms are small-to-average for this property type, so storage and external space are limited compared with modern houses.
Overall this freehold home offers a practical, affordable route into Worcester with short walking links to local shops, schools and city-centre amenities. It delivers immediate liveability with clear scope for value uplift through targeted insulation, cosmetic modernisation and energy-efficiency work.
2 bedroom terraced house for sale in Perdiswell Street, Worcester, WR3 — £220,000 • 2 bed • 1 bath • 864 ft²
4 bedroom terraced house for sale in Richmond Hill, Worcester, WR5 — £325,000 • 4 bed • 3 bath • 1764 ft²
2 bedroom terraced house for sale in Park Street, Worcester, Worcestershire, WR5 — £220,000 • 2 bed • 1 bath • 755 ft²
2 bedroom terraced house for sale in Little Chestnut Street, Worcester, WR1 — £230,000 • 2 bed • 1 bath • 894 ft²
2 bedroom end of terrace house for sale in Lansdowne Terrace, Worcester, Worcestershire, WR1 — £220,000 • 2 bed • 1 bath • 754 ft²
2 bedroom terraced house for sale in Comer Gardens, Worcester, WR2 — £185,000 • 2 bed • 1 bath • 480 ft²


















































































